- 200 m²
- 7 kamers
- 1880
Samenvatting
- Deze woning wordt sinds 30 oktober 2025 aangeboden door Lokaal Makelaardij;
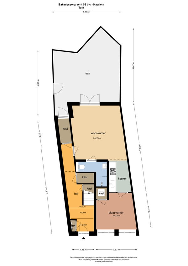
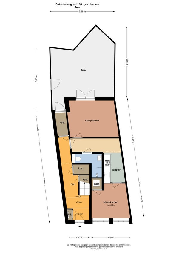
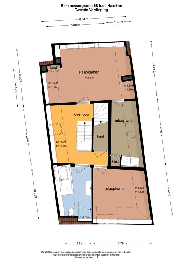
- De galerijflat heeft een woonoppervlakte van 200 m² en beschikt over 7 kamers, waarvan 5 slaapkamers;
- De woning is gebouwd In 1880 en ligt in de buurt Bakenes in Haarlem.
Beschrijving
Meer woninginformatie bekijken?
Log in of registreer gratis.
Overdracht
- Vraagprijs
- € 1.595.000 k.k.
- Aangeboden sinds
- 30-10-2025
- Status
- Beschikbaar
- Beschikbaar
- In overleg
Oppervlakte en inhoud
- Woonoppervlakte
- 200 m²
- Perceeloppervlakte
- 103 m²
Bouw
- Type woning
- Appartement
- Soort woning
- Galerijflat
- Soort bouw
- Bestaande bouw
- Bouwjaar
- 1880
Indeling
- Aantal kamers
- 7
- Aantal slaapkamers
- 5
- Aantal badkamers
- 2
Buitenruimte
- Dakterras
- Niet aanwezig
 
                 
                 
                 
                 
                 
                 
                 
                 
                 
                 
                 
                 
                 
                 
                 
                 
                 
                 
                 
                 
                 
                 
                 
                 
                 
                 
                 
                 
                 
                 
                 
                 
                 
                 
                 
                 
                 
                 
                 
                 
                 
                 
                 
                 
                 
                 
                 
                 
                 
                 
                 
                 
                 
                 
                 
                 
                 
                 
                 
                 
                 
                 
                 
                 
                 
                 
                 
                 
                 
                 
                 
                 
                 
                 
                 
                 
                 
                 
                 
                 
                 
                 
                 
                 
                 
                 
                 
                 
                 
                 
                 
                 
                