Contact met de makelaar

Deze woning is gevonden buiten ons eigen netwerk. Met de knop hieronder kom je direct bij de aanbieder terecht.

Nieuw

Laurent Rampartstraat

Bekijk kaart
4661 KG Halsteren (Halsteren-Centrum)
€ 398.000 k.k.
  • 126 m²
  • 5 kamers
  • 1959

Samenvatting

  • Deze woning wordt sinds 8 december 2025 aangeboden door Baas Makelaars;
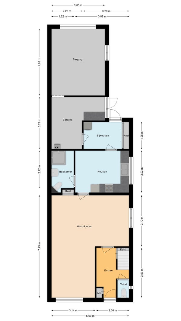
  • De galerijflat heeft een woonoppervlakte van 126 m² en beschikt over 5 kamers, waarvan 4 slaapkamers;
  • De woning is gebouwd In 1959 en ligt in de buurt Halsteren-Centrum in Halsteren.

Beschrijving

Overdracht

Vraagprijs
€ 398.000 k.k.
Aangeboden sinds
08-12-2025
Status
Beschikbaar
Beschikbaar
In overleg

Oppervlakte en inhoud

Woonoppervlakte
126 m²
Perceeloppervlakte
320 m²

Bouw

Type woning
Appartement
Soort woning
Galerijflat
Soort bouw
Bestaande bouw
Bouwjaar
1959

Indeling

Aantal kamers
5
Aantal slaapkamers
4
Aantal badkamers
1

Buitenruimte

Dakterras
Niet aanwezig

Energie

Energielabel
E
Meld een probleem met deze woning