Contact met de makelaar

Deze woning is gevonden buiten ons eigen netwerk. Met de knop hieronder kom je direct bij de aanbieder terecht.

Nieuw

Bongerd 21 A

Bekijk kaart
6411 JL Heerlen (Heerlen-Centrum)
€ 219.000 k.k.
  • 81 m²
  • 3 kamers
  • 1930

Samenvatting

  • Deze woning wordt sinds 11 november 2025 aangeboden door Pooters Makelaardij;
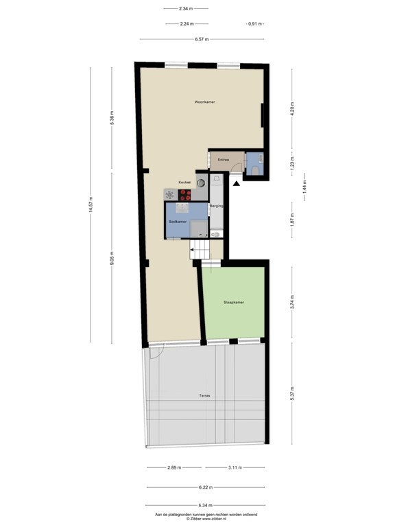
  • De portiekflat heeft een woonoppervlakte van 81 m² en beschikt over 3 kamers, waarvan 1 slaapkamer;
  • De woning is gebouwd In 1930 en ligt in de buurt Heerlen-Centrum in Heerlen;
  • De woning beschikt onder andere over de volgende voorzieningen: Kabel TV, Internetaansluiting, Dakterras, Douche, Bergruimte, Toilet.

Beschrijving

Meer woninginformatie bekijken?

Log in of registreer gratis.

Overdracht

Vraagprijs
€ 219.000 k.k.
Aangeboden sinds
11-11-2025
Status
Beschikbaar
Beschikbaar
In overleg
Onderhoudsstaat
Goed

Oppervlakte en inhoud

Woonoppervlakte
81 m²
Inhoud
268 m³

Bouw

Type woning
Appartement
Soort woning
Portiekflat, Appartement
Soort bouw
Bestaande bouw
Bouwjaar
1930
Ligging
  • Nabij het openbaar vervoer
  • Nabij een school

Indeling

Aantal kamers
3
Aantal slaapkamers
1
Aantal badkamers
1
Aantal woonlagen
2
Voorzieningen
  • Kabel TV
  • Internetaansluiting
  • Dakterras
  • Douche
  • Bergruimte
  • Toilet

Buitenruimte

Balkon
Niet aanwezig
Dakterras
Aanwezig

Energie

Verwarming
CV-ketel
Warm water
CV-ketel
Energielabel
D

Bergruimte

Schuur/Berging
Aanwezig

Parkeergelegenheid

Aanwezig
Ja
Soort parkeergelegenheid
Betaald
Meld een probleem met deze woning
Contact met de makelaar Bel