Contact met de makelaar

Deze woning is gevonden buiten ons eigen netwerk. Met de knop hieronder kom je direct bij de aanbieder terecht.

Verkocht onder voorbehoud

Mariastraat 8

Bekijk kaart
2181 CT Hillegom (Oranjebuurt)
€ 375.000 k.k.
  • 95 m²
  • 3 kamers
  • 1928

Samenvatting

  • Deze woning wordt sinds 7 weken aangeboden door Goedhart Makelaars en Taxateurs;
  • De bovenwoning heeft een woonoppervlakte van 95 m² en beschikt over 3 kamers, waarvan 2 slaapkamers;
  • De woning is gebouwd In 1928 en ligt in de buurt Oranjebuurt in Hillegom;
  • De woning beschikt onder andere over de volgende voorzieningen: Bad, Kabel TV, Buitenzonwering, Dakterras, Douche, Schuifdeuren, Toilet, Wasruimte.

Beschrijving

Midden in het centrum van Hillegom bieden wij u een ruim 95m² grootte bovenwoning aan. Naast de fantastische locatie en zonnige ligging beschikt deze woning over een ruime woonkamer met schuifpui naar het dakterras, 2 ruime slaapkamers en een wasruimte. Het geheel is netjes afgewerkt en beschikt over 8 zonnepanelen.

Het centrum van Hillegom is een drukbezochte plek door de aanwezigheid van diverse winkels, leuke restaurants/cafés en supermarkten. Naast de korte afstand tot diverse uitvalswegen is vanuit hier gemakkelijk het station van Hillegom te bereiken welke u naar o.a. Haarlem en Leiden brengt, ook Amsterdam is eenvoudig en snel te bereiken.

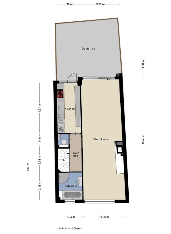
Entree via eigen ingang vanaf de winkelstraat.

Op de eerste verdieping vindt u een royale woonkamer met open haard, schuifpui naar het zonnig gesitueerde dakterras van ca. 27m² en aan de voorzijde een ontzettend leuk nisje waar u vrij uitzicht heeft! De dichte keuken met moderne keukenopstelling is voorzien van diverse apparatuur, o.a. een antraciet werkblad, een 5-pits inductiekookplaat, een afzuigkap, een combi oven-magnetron, een koel- vriescombinatie en een vaatwasser. Ook vanuit de keuken is het dakterras bereikbaar. Badkamer met ligbad, designradiator en douche. Tevens is er een apart toilet met fonteintje. De volledige 1e verdieping is voorzien van een laminaatvloer.

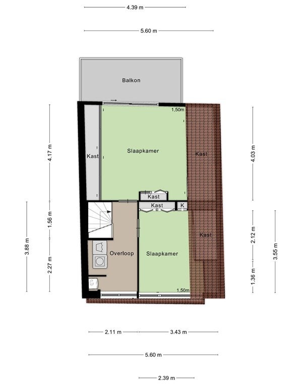
Via de trapopgang heeft u toegang tot de tweede verdieping met 2 slaapkamers, aparte praktische wasruimte met ook opstelling van de CV installatie, bergruimte (onder het dakbeschot) en het zonnig gesitueerde dakterras! Ook deze etage is voorzien van een laminaatvloer.

1e verdieping vanuit woonkamer en keuken:
Zonnig dakterras van maar liefst 27m², gesitueerd op zuidoost. Tevens beschikt deze over een zonnescherm.
Op de 2e verdieping bevindt zich een dakterras van 8m², te bereiken via de slaapkamer aan de achterzijde.

Bieden vanaf € 375.000,-

  • Woonoppervlakte 95m²
  • Dak vernieuwd in 2015
  • Dakterras van maar liefst 27m²
  • Maandelijkse servicekosten VvE: € 78,-
  • Unieke locatie met heerlijk zonnige dakterras
  • Energielabel D
  • Oplevering in overleg
  • Bouwjaar 1928
  • Beschermd dorpsgezicht

Reageer op tijd op nieuw woningaanbod

Meer dan de helft van de reacties komt binnen 48 uur. Ontvang direct notificaties bij nieuw aanbod en reageer sneller met Pararius+.

Probeer Pararius+ 14 dagen € 0,01

Overdracht

Vraagprijs
€ 375.000 k.k.
Aangeboden sinds
19-11-2025
Status
Verkocht onder voorbehoud
Beschikbaar
In overleg
Onderhoudsstaat
Goed

Oppervlakte en inhoud

Woonoppervlakte
95 m²
Inhoud
334 m³

VvE informatie

Inschrijving KvK
Ja
Periodieke bijdrage
Ja (€ 78 per maand)
Reservefonds aanwezig
Ja
Opstalverzekering
Ja

Bouw

Type woning
Appartement
Soort woning
Bovenwoning, Appartement
Soort bouw
Bestaande bouw
Bouwjaar
1928
Ligging
  • In het centrum
  • Nabij het openbaar vervoer
  • Nabij een school
  • Nabij een winkelcentrum
  • Vrij uitzicht

Indeling

Aantal kamers
3
Aantal slaapkamers
2
Aantal badkamers
1
Aantal woonlagen
2
Voorzieningen
  • Bad
  • Kabel TV
  • Buitenzonwering
  • Dakterras
  • Douche
  • Schuifdeuren
  • Toilet
  • Wasruimte

Buitenruimte

Balkon
Aanwezig
Tuin
Aanwezig (26 m², gelegen op het zuidoosten)
Tuinbeschrijving
zonneterras
Achterom
Niet aanwezig
Dakterras
Aanwezig

Energie

Isolatie
Dubbele beglazing
Verwarming
CV-ketel
Warm water
CV-ketel
Energielabel
D

Parkeergelegenheid

Aanwezig
Ja
Soort parkeergelegenheid
Openbaar
Meld een probleem met deze woning