Contact met de makelaar

Deze woning is gevonden buiten ons eigen netwerk. Met de knop hieronder kom je direct bij de aanbieder terecht.

Nieuw

van Ruysdaellaan 44

Bekijk kaart
2264 TL Leidschendam (Raadhuiskwartier)
€ 375.000 k.k.
  • 79 m²
  • 4 kamers
  • 1959

Samenvatting

  • Deze woning wordt sinds 15 januari 2026 aangeboden door RE/MAX Adviseurs Haaglanden;
  • De maisonnette heeft een woonoppervlakte van 79 m² en beschikt over 4 kamers, waarvan 3 slaapkamers;
  • De woning is gebouwd In 1959 en ligt in de buurt Raadhuiskwartier in Leidschendam;
  • De woning beschikt onder andere over de volgende voorzieningen: Bad, Toilet, Wasruimte.

Beschrijving

for English see text below

Gezinnen en starters opgelet: Gezinsvriendelijke 4-kamermaisonnette met 2 balkons en eigen berging – instapklaar en centraal gelegen!

Het appartement (ca. 79 m² woonoppervlak) ligt op de eerste en tweede verdieping van een kleinschalig complex (1959) en beschikt over maar liefst 3 slaapkamers, 2 zonnige balkons én een eigen vrijstaande berging (7m²) op de begane grond.

De woning ligt op een fantastische locatie: rustig, maar toch dichtbij alles. Op loopafstand vindt u de Mall of the Netherlands, het gezellige oude centrum, scholen, kinderopvang, sportclubs, parken en het zwembad. Binnen enkele minuten rijdt u op de A4, A12 of A13 en zijn Den Haag, Rotterdam en Amsterdam uitstekend bereikbaar. Ook het openbaar vervoer bevindt zich in directe nabijheid.

Indeling
Eerste verdieping
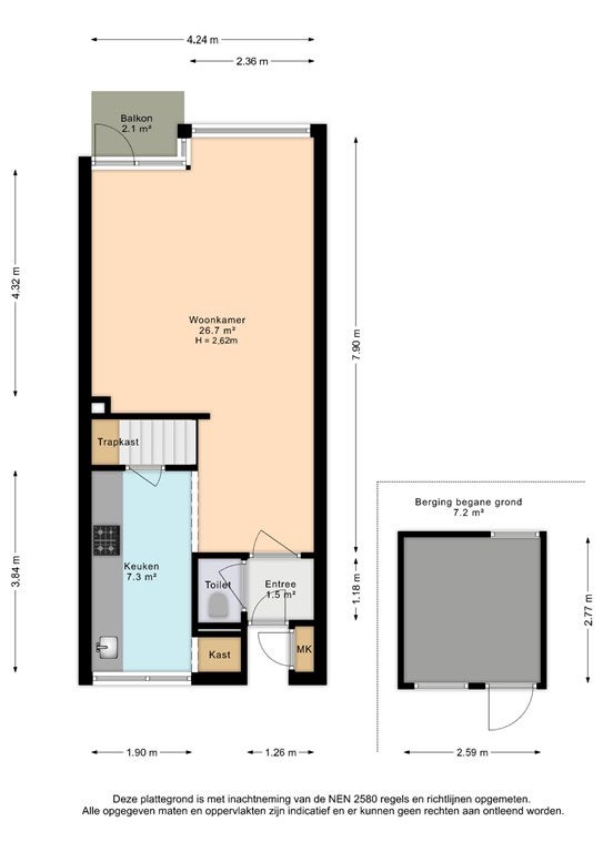
De voordeur van de woning is gelegen op de eerste verdieping, bereikbaar via de galerij. Naast de voordeur is de meterkast voorzien van een gemoderniseerde groepenkast met 7 groepen. Je betreedt de woning in een hal met een separaat, modern toilet voorzien van een wandcloset en een fonteintje. De lichte woonkamer met eetgedeelte (ca. 24 m²) ligt op het zuiden en geeft toegang tot het balkon aan de voorzijde. De open keuken (ca. 7 m²) is modern uitgevoerd en voorzien van een 5-pits gasfornuis met afzuigkap, vaatwasser en oven. De koelvriescombi staat los.

Tweede verdieping
De overloop biedt toegang tot drie slaapkamers. De grootste slaapkamer (ca. 11,5 m²) ligt aan de achterzijde en grenst aan een royaal balkon over de volle breedte. De twee slaapkamers aan de voorzijde zijn ca. 9 m² en 6 m². De badkamer is in 2019 vernieuwd en voorzien van ligbad met douche en wastafelmeubel. Op de overloop bevindt zich een vaste kast met wasmachine- en drogeraansluiting en de cv-installatie.

Kortom: een heerlijk lichte en ruime maisonnette met 3 slaapkamers, een ideale ligging en alles wat u nodig heeft voor comfortabel wonen. Maak snel een afspraak voor een bezichtiging en ontdek zelf wat deze woning allemaal te bieden heeft!

Overige kenmerken
Vrijstaande berging (7 m²) op de begane grond
De woning is volledig voorzien van dubbel glas (HR++)
Geïsoleerde vloeren
HR Vaillant cv-installatie (2021), april 2025 onderhoudsbeurt uitgevoerd
Energielabel D (geldig tot 2029)
Actieve VvE, bijdrage € 262 p.m.
Voorgevel deels met zonwering
Complex ligt op eigen grond
Buiten schilderwerk uitgevoerd eind 2024
Asbest- en materialenclausule van toepassing
Gratis parkeren in de directe omgeving
Oplevering in overleg

Attention families and first-time buyers: Family-friendly 4-room maisonette with 2 balconies and private storage – move-in ready and centrally located!

The apartment (approx. 79 m² living space) is located on the first and second floors of a small complex (1959) and features no fewer than 3 bedrooms, 2 sunny balconies, and a private detached storage unit (7 m²) on the ground floor.

The property is in a fantastic location: quiet, yet close to everything. Within walking distance are the Mall of the Netherlands, the charming old town, schools, childcare, sports clubs, parks, and the swimming pool. The A4, A12, or A13 motorways are just a few minutes away, offering excellent connections to The Hague, Rotterdam, and Amsterdam. Public transport is also nearby.

Layout
First floor: The front door of the house is located on the first floor, accessible via the gallery. Next to the front door is the meter cupboard with a modernized distribution board with 7 circuits. You enter the house into a hallway with a separate, modern toilet equipped with a wall-hung toilet and a small sink. The bright living room with dining area (approx. 24 m²) faces south and provides access to the front balcony. The open-plan kitchen (approx. 7 m²) is modern and equipped with a 5-burner gas stove with extractor hood, dishwasher, and oven. The fridge-freezer is separate.

Second floor: The landing provides access to three bedrooms. The largest bedroom (approx. 11.5 m²) is located at the rear of the house and opens onto a spacious balcony spanning the entire width of the house. The two bedrooms at the front are approximately 9 m² and 6 m² respectively. The bathroom was renovated in 2019 and features a bathtub with shower and vanity. A built-in closet with connections for the washing machine and dryer, as well as the central heating system, is located on the landing.

In short: a wonderfully bright and spacious maisonette with three bedrooms, an ideal location, and everything you need for comfortable living. Schedule a viewing now and discover everything this property has to offer!

Other features
Detached storage room (7 m²) on the ground floor
The house is fully equipped with double glazing (HR++)
Insulated floors
High-efficiency Vaillant central heating system (2021), recently maintained
Energy label D (valid until 2029)
Active homeowners' association (VvE), contribution €262 per month
Front facade partially with sun blinds
Complex is located on freehold land
Exterior painting completed in end of 2024
Asbestos and materials clause applies
Free parking in the immediate vicinity
Delivery date by arrangement

Overdracht

Vraagprijs
€ 375.000 k.k.
Aangeboden sinds
15-01-2026
Status
Beschikbaar
Beschikbaar
In overleg
Onderhoudsstaat
Goed

Oppervlakte en inhoud

Woonoppervlakte
79 m²
Inhoud
250 m³

Bouw

Type woning
Appartement
Soort woning
Maisonnette, Appartement
Soort bouw
Bestaande bouw
Bouwjaar
1959
Ligging
  • Aan een rustige weg
  • In een woonwijk
  • Nabij het openbaar vervoer
  • Nabij een school
  • Nabij een winkelcentrum

Indeling

Aantal kamers
4
Aantal slaapkamers
3
Aantal badkamers
1
Aantal woonlagen
2
Verdieping
2
Voorzieningen
  • Bad
  • Toilet
  • Wasruimte

Buitenruimte

Balkon
Aanwezig
Dakterras
Niet aanwezig

Energie

Isolatie
Dubbele beglazing, Vloerisolatie
Verwarming
CV-ketel
Warm water
Centrale verwarming
Cv-ketel
Vaillant HR (Gas, uit 2021, Eigendom)
Energielabel
D

Bergruimte

Schuur/Berging
Aanwezig

Parkeergelegenheid

Aanwezig
Ja
Soort parkeergelegenheid
Openbaar
Meld een probleem met deze woning