Contact met de makelaar

Deze woning is gevonden buiten ons eigen netwerk. Met de knop hieronder kom je direct bij de aanbieder terecht.

Nieuw

Wethouder Bogersstraat

Bekijk kaart
4664 BB Lepelstraat (Lepelstraat)
€ 475.000 k.k.
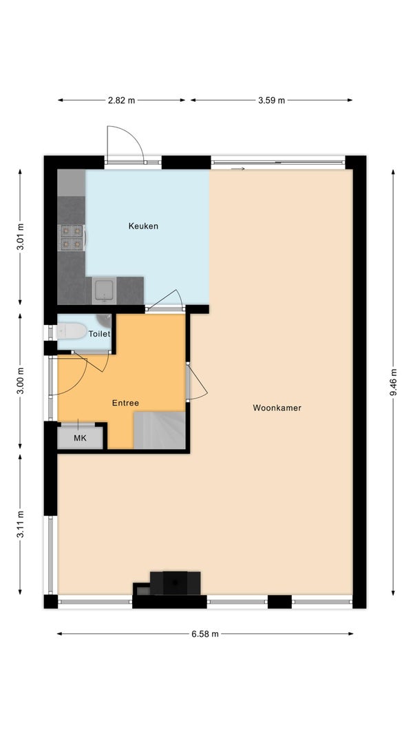
  • 158 m²
  • 5 kamers
  • 1979

Samenvatting

  • Deze woning wordt sinds 21 november 2025 aangeboden door Baas Makelaars;
  • De galerijflat heeft een woonoppervlakte van 158 m² en beschikt over 5 kamers, waarvan 4 slaapkamers;
  • De woning is gebouwd In 1979 en ligt in de buurt Lepelstraat in Lepelstraat.

Beschrijving

Overdracht

Vraagprijs
€ 475.000 k.k.
Aangeboden sinds
21-11-2025
Status
Beschikbaar
Beschikbaar
In overleg

Oppervlakte en inhoud

Woonoppervlakte
158 m²
Perceeloppervlakte
380 m²

Bouw

Type woning
Appartement
Soort woning
Galerijflat
Soort bouw
Bestaande bouw
Bouwjaar
1979

Indeling

Aantal kamers
5
Aantal slaapkamers
4
Aantal badkamers
1

Buitenruimte

Dakterras
Niet aanwezig

Energie

Energielabel
B
Meld een probleem met deze woning