Contact met de makelaar

Deze woning is gevonden buiten ons eigen netwerk. Met de knop hieronder kom je direct bij de aanbieder terecht.

Nieuw

Jacob van Heemskercklaan 253

Bekijk kaart
3144 DK Maassluis (Het Balkon)
€ 325.000 k.k.
  • 51 m²
  • 1 kamer
  • 2023

Samenvatting

  • Deze woning wordt sinds 9 januari 2026 aangeboden door Waterweg Woning Makelaar;
  • De galerijflat heeft een woonoppervlakte van 51 m² en beschikt over 1 kamer, waarvan 1 slaapkamer;
  • De woning is gebouwd In 2023 en ligt in de buurt Het Balkon in Maassluis;
  • De woning beschikt onder andere over de volgende voorzieningen: Glasvezelaansluiting, Mechanische ventilatie, Douche, Toilet.

Beschrijving

In het nieuwbouwcomplex Ceres ligt dit gelijkvloerse appartement met prachtig zicht vanaf de entree op de Waterweg. Dit appartement biedt de perfecte combinatie van duurzaamheid, comfort en is volledig gasloos. Of je nu jong of wat ouder bent dit appartement is instapklaar en direct beschikbaar.

Hoe heerlijk is dat: Je loopt het appartement uit en stapt zo op de metro voor een dagje strand in Hoek van Holland of heerlijk winkelen in Rotterdam. Trek je er graag op uit met de fiets of de wandelschoenen dan is dit de perfecte locatie voor de start van een wandeling. In 10 minuten wandel je voor de dagelijkse boodschappen is het overdekte winkelcentrum de Koningshoek. Het historische centrum van Maassluis met zijn gezellige restaurantjes is op fietsafstand.

Het complex
Bij aankomst word je verwelkomd in een representatieve centrale hal met bellentableau, brievenbussen, lift en een ruime gezamenlijke fietsenstalling. Parkeren doe je comfortabel op het privéterrein in de binnentuin.

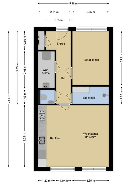
Indeling
Je komt het appartement binnen in een lange, lichte hal die toegang biedt tot alle vertrekken. Hier vind je de garderobe, een moderne toiletruimte en een praktische technische ruimte met aansluitingen voor wasmachine en droger, de warmtepomp en een royale 200-liter boiler.

Slaapkamer
De slaapkamer aan de voorzijde is strak afgewerkt en heeft naast een tweepersoonsbed ook ruimte voor een grote garderobekast.

Badkamer
De naastgelegen badkamer straalt luxe uit met moderne betegeling, een inloopdouche met regendouche en een dubbele wastafelmeubel met spiegel.

Woonkamer
Via deze prachtige zwarte deur komen we aan de achterzijde van de woning in de lichte woonkamer. De grote glaspartij met vier draai-/kiepramen zorgt voor een prachtige lichtinval.

Keuken
De open keuken is een echte eyecatcher: uitgevoerd in matzwart en compleet met hoogwaardige inbouwapparatuur, waaronder een kokend waterkraan en inductiekookplaat en een Bora recirculatie afzuigsysteem.

NIEUW: Luxe & Duurzaam wonen in Maassluis! ️
Droom jij van een instapklaar appartement met uitzicht op de Nieuwe Waterweg? Dit appartement in complex Ceres (2023) heeft het allemaal:

Energielabel A+++ (gasloos & super zuinig!)
Luxe zwarte designkeuken met kokend waterkraan
Zonnig zitje aan de voorzijde bij de entree
Eigen parkeergelegenheid in de binnentuin
51 m² puur comfort met vloerverwarming (behalve badkamer)
Oplevering in overleg

-Bijzonderheden-
• Gasloos en duurzaam
• Vloerverwarming ( behalve badkamer)
• Instapklaar
• Garantie op Warmte pomp en keuken

-Dichtbij-
• Winkelcentrum Koningshoek
• Metrostation West
• Wandel en Fietsgebied langs de Waterweg

Deze informatie is door ons met de nodige zorgvuldigheid samengesteld. Onzerzijds wordt echter geen enkele aansprakelijkheid aanvaard voor enige onvolledigheid, onjuistheid of anderszins, dan wel de gevolgen daarvan. 

Overdracht

Vraagprijs
€ 325.000 k.k.
Aangeboden sinds
09-01-2026
Status
Beschikbaar
Beschikbaar
In overleg
Bijzonderheden
Seniorenwoning
Onderhoudsstaat
Zeer goed

Oppervlakte en inhoud

Woonoppervlakte
51 m²
Perceeloppervlakte
1.354 m²
Inhoud
180 m³

VvE informatie

Inschrijving KvK
Ja
Jaarlijkse vergadering
Ja
Periodieke bijdrage
Ja (€ 117 per maand)
Reservefonds aanwezig
Ja
Onderhoudsplan
Ja
Opstalverzekering
Ja

Bouw

Type woning
Appartement
Soort woning
Galerijflat, Appartement
Soort bouw
Bestaande bouw
Bouwjaar
2023
Ligging
  • Aan een rustige weg
  • Aan vaarwater
  • In een woonwijk
  • Nabij het openbaar vervoer
  • Nabij een school

Indeling

Aantal kamers
1
Aantal slaapkamers
1
Aantal badkamers
1
Aantal woonlagen
1
Verdieping
3
Voorzieningen
  • Glasvezelaansluiting
  • Mechanische ventilatie
  • Douche
  • Toilet

Buitenruimte

Balkon
Niet aanwezig
Dakterras
Niet aanwezig

Energie

Isolatie
Volledig geïsoleerd
Verwarming
Gedeeltelijke vloerverwarming, Warmtepomp
Energielabel
A+++

Parkeergelegenheid

Aanwezig
Ja
Soort parkeergelegenheid
Openbaar
Meld een probleem met deze woning