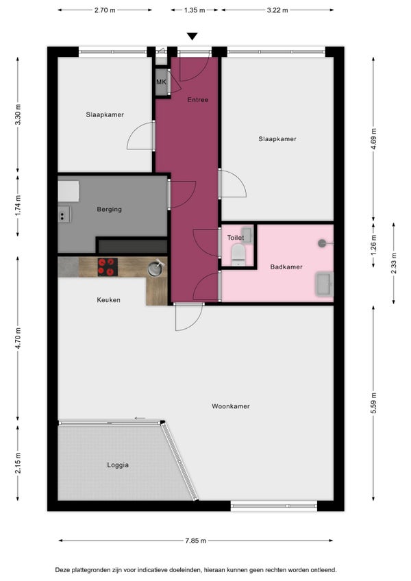
- 92 m²
- 3 kamers
- 2005
Samenvatting
- Deze woning wordt sinds 2 oktober 2025 aangeboden door Van Santen Makelaardij;
- De galerijflat heeft een woonoppervlakte van 92 m² en beschikt over 3 kamers, waarvan 2 slaapkamers;
- De woning is gebouwd In 2005 en ligt in de buurt Koeberg in Meppel;
- De woning beschikt onder andere over de volgende voorzieningen: Kabel TV, Lift, Glasvezelaansluiting, Mechanische ventilatie, Buitenzonwering, Douche, Schuifdeuren, Bergruimte, Toilet, Wasruimte.
Beschrijving
Overdracht
- Vraagprijs
- € 375.000 k.k.
- Aangeboden sinds
- 02-10-2025
- Status
- Beschikbaar
- Beschikbaar
- In overleg
- Bijzonderheden
- Seniorenwoning
- Onderhoudsstaat
- Goed
Oppervlakte en inhoud
- Woonoppervlakte
- 92 m²
- Inhoud
- 251 m³
Bouw
- Type woning
- Appartement
- Soort woning
- Galerijflat, Appartement
- Soort bouw
- Bestaande bouw
- Bouwjaar
- 2005
- Ligging
- In een woonwijk
Indeling
- Aantal kamers
- 3
- Aantal slaapkamers
- 2
- Aantal badkamers
- 1
- Aantal woonlagen
- 1
- Voorzieningen
-
- Kabel TV
- Lift
- Glasvezelaansluiting
- Mechanische ventilatie
- Buitenzonwering
- Douche
- Schuifdeuren
- Bergruimte
- Toilet
- Wasruimte
Buitenruimte
- Balkon
- Niet aanwezig
- Tuin
- Niet aanwezig
- Dakterras
- Niet aanwezig
Energie
- Isolatie
- Volledig geïsoleerd
- Verwarming
- CV-ketel
- Warm water
- CV-ketel
- Cv-ketel
- HR (Gas, uit 2015, Eigendom)
- Energielabel
- A+
Bergruimte
- Schuur/Berging
- Aanwezig
- Omschrijving
- Inpandig
Parkeergelegenheid
- Aanwezig
- Ja
- Soort parkeergelegenheid
- Op eigen terrein
Garage
- Aanwezig
- Nee