Contact met de makelaar

Deze woning is gevonden buiten ons eigen netwerk. Met de knop hieronder kom je direct bij de aanbieder terecht.

Nieuw

Oost-Voorstraat 71 A

Bekijk kaart
3262 JG Oud-Beijerland (Oud-Beijerland Centrum)
€ 250.000 k.k.
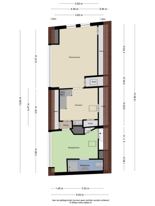
  • 65 m²
  • 4 kamers
  • 1780

Samenvatting

  • Deze woning wordt sinds 10 oktober 2025 aangeboden door Ambitie Makelaars;
  • De bovenwoning heeft een woonoppervlakte van 65 m² en beschikt over 4 kamers, waarvan 1 slaapkamer;
  • De woning is gebouwd In 1780 en ligt in de buurt Oud-Beijerland Centrum in Oud-Beijerland.

Beschrijving

Overdracht

Vraagprijs
€ 250.000 k.k.
Aangeboden sinds
10-10-2025
Status
Beschikbaar
Beschikbaar
In overleg
Onderhoudsstaat
Goed

Oppervlakte en inhoud

Woonoppervlakte
65 m²
Perceeloppervlakte
65 m²
Inhoud
216 m³

Bouw

Type woning
Appartement
Soort woning
Bovenwoning, Appartement
Soort bouw
Bestaande bouw
Bouwjaar
1780
Ligging
In het centrum

Indeling

Aantal kamers
4
Aantal slaapkamers
1
Aantal woonlagen
1
Voorzieningen
Dakraam

Buitenruimte

Balkon
Niet aanwezig
Tuin
Niet aanwezig
Dakterras
Niet aanwezig

Energie

Verwarming
CV-ketel
Warm water
CV-ketel
Cv-ketel
Nefit (Gas, uit 2024, Eigendom)
Energielabel
E

Parkeergelegenheid

Aanwezig
Ja
Soort parkeergelegenheid
Openbaar

Garage

Aanwezig
Nee
Meld een probleem met deze woning
Contact met de makelaar Bel