Contact met de makelaar

Deze woning is gevonden buiten ons eigen netwerk. Met de knop hieronder kom je direct bij de aanbieder terecht.

Nieuw

Schootshof 15

Bekijk kaart
5825 AW Overloon (Overloon Centrum)
€ 400.000 k.k.
  • 118 m²
  • 7 kamers
  • 2010

Samenvatting

  • Deze woning wordt sinds 2 oktober 2025 aangeboden door Startpunt Wonen;
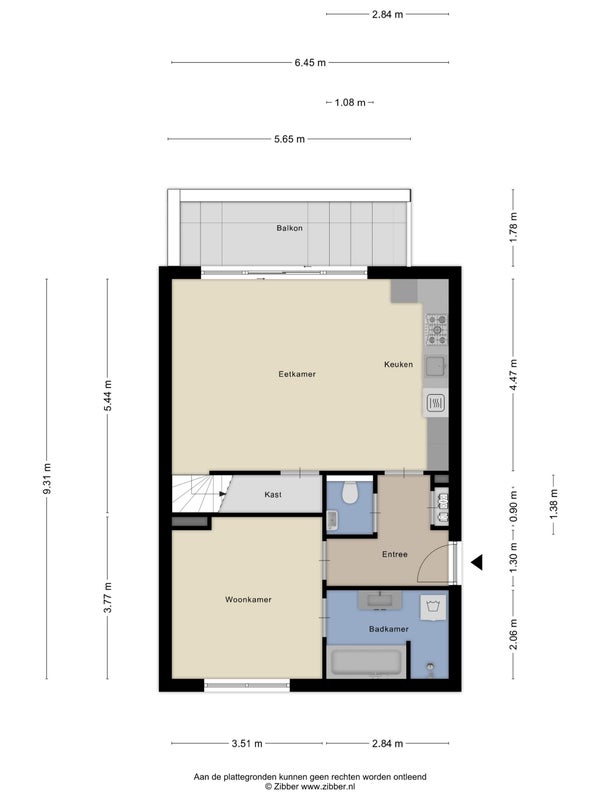
  • De maisonnette heeft een woonoppervlakte van 118 m² en beschikt over 7 kamers, waarvan 2 slaapkamers;
  • De woning is gebouwd In 2010 en ligt in de buurt Overloon Centrum in Overloon;
  • De woning beschikt onder andere over de volgende voorzieningen: Bad, Mechanische ventilatie, Douche, Toilet, Wasruimte.

Beschrijving

Overdracht

Vraagprijs
€ 400.000 k.k.
Aangeboden sinds
02-10-2025
Status
Beschikbaar
Beschikbaar
In overleg
Onderhoudsstaat
Zeer goed

Oppervlakte en inhoud

Woonoppervlakte
118 m²
Inhoud
420 m³

Bouw

Type woning
Appartement
Soort woning
Maisonnette, Appartement
Soort bouw
Bestaande bouw
Bouwjaar
2010
Ligging
  • Aan een rustige weg
  • Aan bosrand
  • In het centrum
  • In een woonwijk
  • In bosrijke omgeving
  • Vrij uitzicht

Indeling

Aantal kamers
7
Aantal slaapkamers
2
Aantal badkamers
1
Aantal woonlagen
4
Voorzieningen
  • Bad
  • Mechanische ventilatie
  • Douche
  • Toilet
  • Wasruimte

Buitenruimte

Balkon
Aanwezig
Tuin
Niet aanwezig
Dakterras
Niet aanwezig

Energie

Verwarming
CV-ketel
Warm water
CV-ketel
Cv-ketel
Remeha (Gas, uit 2010, Eigendom)
Energielabel
A

Bergruimte

Schuur/Berging
Aanwezig
Omschrijving
Inpandig

Parkeergelegenheid

Aanwezig
Ja
Soort parkeergelegenheid
Openbaar

Garage

Aanwezig
Nee
Meld een probleem met deze woning
Contact met de makelaar Bel