- 144 m²
- 5 kamers
- 2006
Samenvatting
- Deze woning wordt sinds 28 oktober 2025 aangeboden door Janssen & van Oosten;
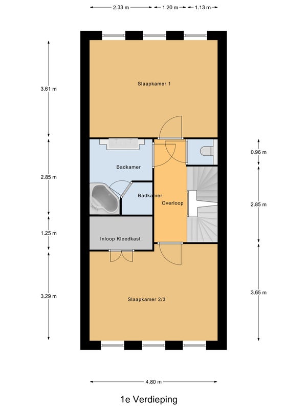
- De galerijflat heeft een woonoppervlakte van 144 m² en beschikt over 5 kamers, waarvan 4 slaapkamers;
- De woning is gebouwd In 2006 en ligt in de buurt Edelstenenwijk in 's-Gravenzande.
Beschrijving
Meer woninginformatie bekijken?
Log in of registreer gratis.
Overdracht
- Vraagprijs
- € 595.000 k.k.
- Aangeboden sinds
- 28-10-2025
- Status
- Beschikbaar
- Beschikbaar
- In overleg
Oppervlakte en inhoud
- Woonoppervlakte
- 144 m²
- Perceeloppervlakte
- 114 m²
Bouw
- Type woning
- Appartement
- Soort woning
- Galerijflat
- Soort bouw
- Bestaande bouw
- Bouwjaar
- 2006
Indeling
- Aantal kamers
- 5
- Aantal slaapkamers
- 4
- Aantal badkamers
- 1
Buitenruimte
- Dakterras
- Niet aanwezig
 
                 
                 
                 
                 
                 
                 
                 
                 
                 
                 
                 
                 
                 
                 
                 
                 
                 
                 
                 
                 
                 
                 
                 
                 
                 
                 
                 
                 
                 
                 
                 
                 
                 
                 
                 
                 
                 
                 
                 
                 
                 
                 
                 
                 
                 
                 
                 
                 
                 
                 
                 
                 
                 
                