Contact met de makelaar

Deze woning is gevonden buiten ons eigen netwerk. Met de knop hieronder kom je direct bij de aanbieder terecht.

Boterstraat 48 C

Bekijk kaart
3111 ND Schiedam (Brandersbuurt)
€ 299.000 k.k.
  • 68 m²
  • 1 kamer
  • 1906

Samenvatting

  • Deze woning wordt sinds 6 weken aangeboden door Brussé Vastgoed;
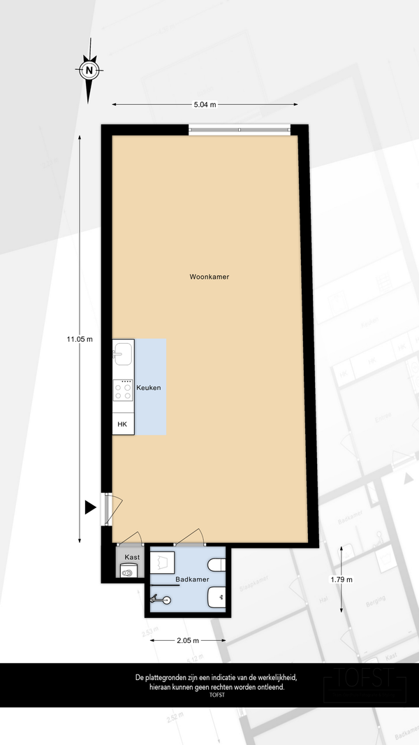
  • De benedenwoning heeft een woonoppervlakte van 68 m² en beschikt over 1 kamer, waarvan 1 slaapkamer;
  • De woning is gebouwd In 1906 en ligt in de buurt Brandersbuurt in Schiedam;
  • De woning beschikt onder andere over de volgende voorzieningen: Glasvezelaansluiting, Mechanische ventilatie, Douche, Bergruimte, Toilet.

Beschrijving

Meer woninginformatie bekijken?

Log in of registreer gratis.

Overdracht

Vraagprijs
€ 299.000 k.k.
Aangeboden sinds
12-09-2025
Status
Beschikbaar
Beschikbaar
Per direct
Bijzonderheden
Monumentaal pand, Beschermd stads- of dorpsgezicht
Onderhoudsstaat
Goed

Oppervlakte en inhoud

Woonoppervlakte
68 m²
Perceeloppervlakte
164 m²
Inhoud
199 m³

VvE informatie

Inschrijving KvK
Ja
Jaarlijkse vergadering
Ja
Periodieke bijdrage
Ja (€ 92 per maand)
Reservefonds aanwezig
Ja
Onderhoudsplan
Nee
Opstalverzekering
Ja

Bouw

Type woning
Appartement
Soort woning
Benedenwoning, Appartement
Soort bouw
Bestaande bouw
Bouwjaar
1906
Ligging
In het centrum

Indeling

Aantal kamers
1
Aantal slaapkamers
1
Aantal badkamers
1
Aantal woonlagen
1
Voorzieningen
  • Glasvezelaansluiting
  • Mechanische ventilatie
  • Douche
  • Bergruimte
  • Toilet

Buitenruimte

Balkon
Niet aanwezig
Tuin
Niet aanwezig
Dakterras
Niet aanwezig

Energie

Isolatie
Vloerisolatie, HR glas, Dakisolatie, Muurisolatie
Verwarming
CV-ketel
Warm water
CV-ketel
Cv-ketel
Remeha (Gas, uit 2020, Eigendom)
Energielabel
A+

Parkeergelegenheid

Aanwezig
Ja
Soort parkeergelegenheid
Openbaar

Garage

Aanwezig
Nee
Meld een probleem met deze woning
Contact met de makelaar Bel