Contact met de makelaar

Deze woning is gevonden buiten ons eigen netwerk. Met de knop hieronder kom je direct bij de aanbieder terecht.

Oesterdam

Bekijk kaart
4691 PV Tholen (Verspreide huizen Tholen)
€ 305.000 k.k.
  • 55 m²
  • 3 kamers
  • 2019

Samenvatting

  • Deze woning wordt sinds 6 weken aangeboden door Leunis Makelaars;
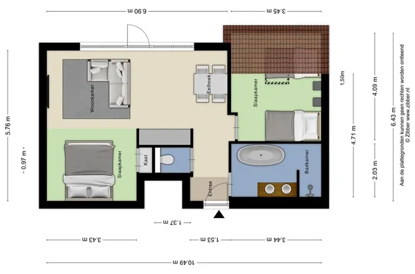
  • De galerijflat heeft een woonoppervlakte van 55 m² en beschikt over 3 kamers, waarvan 2 slaapkamers;
  • De woning is gebouwd In 2019 en ligt in de buurt Verspreide huizen Tholen in Tholen.

Beschrijving

Op zoek naar een investering in luxe en gemak aan het water? Dit is een luxe 4-persoons hotelsuite in het hoofdgebouw van Waterrijk Oesterdam, een prachtig resort gelegen tussen Tholen en Zuid-Beveland. De suite biedt uitzicht op het Zoommeer en Nationaal Park de Oosterschelde. De moderne suite is ingericht met een kingsize bed, een luxe badkamer, toilet, airco en minibar, en geeft toegang tot wellnessfaciliteiten. Het resort heeft een stijlvol restaurant, lounge/bar, wellnessruimte en een full-service jachthaven. Als eigenaar heeft u recht op 4 weken privé gebruik per jaar. Tijdens verkoop betaalt u geen btw of overdrachtsbelasting. Met een woonoppervlakte van 55 m² biedt deze suite kwalitatief verblijf en een aantrekkelijk verhuurpotentieel.

Overdracht

Vraagprijs
€ 305.000 k.k.
Aangeboden sinds
16-12-2025
Status
Beschikbaar
Beschikbaar
Per direct

Oppervlakte en inhoud

Woonoppervlakte
55 m²

Bouw

Type woning
Appartement
Soort woning
Galerijflat
Soort bouw
Bestaande bouw
Bouwjaar
2019

Indeling

Aantal kamers
3
Aantal slaapkamers
2
Aantal badkamers
1

Buitenruimte

Dakterras
Niet aanwezig

Energie

Energielabel
A++
Meld een probleem met deze woning