Contact met de makelaar

Deze woning is gevonden buiten ons eigen netwerk. Met de knop hieronder kom je direct bij de aanbieder terecht.

Nieuw

Stationsplein 12 B

Bekijk kaart
3901 ES Veenendaal (Stationswijk)
€ 249.500 k.k.
  • 36 m²
  • 2 kamers
  • 1980

Samenvatting

  • Deze woning wordt sinds 28 oktober 2025 aangeboden door Ditters Makelaars Veenendaal;
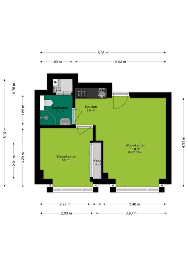
  • De portiekflat heeft een woonoppervlakte van 36 m² en beschikt over 2 kamers, waarvan 1 slaapkamer;
  • De woning is gebouwd In 1980 en ligt in de buurt Stationswijk in Veenendaal;
  • De woning beschikt onder andere over de volgende voorzieningen: Lift, Glasvezelaansluiting, Mechanische ventilatie, Douche, Bergruimte, Toilet.

Beschrijving

Overdracht

Vraagprijs
€ 249.500 k.k.
Aangeboden sinds
28-10-2025
Status
Beschikbaar
Beschikbaar
In overleg
Onderhoudsstaat
Goed

Oppervlakte en inhoud

Woonoppervlakte
36 m²
Inhoud
120 m³

VvE informatie

Inschrijving KvK
Ja
Jaarlijkse vergadering
Ja
Periodieke bijdrage
Ja (€ 123 per maand)
Reservefonds aanwezig
Ja
Onderhoudsplan
Ja
Opstalverzekering
Ja

Bouw

Type woning
Appartement
Soort woning
Portiekflat, Appartement
Soort bouw
Bestaande bouw
Bouwjaar
1980
Ligging
  • In het centrum
  • In een woonwijk

Indeling

Aantal kamers
2
Aantal slaapkamers
1
Aantal badkamers
1
Aantal woonlagen
1
Voorzieningen
  • Lift
  • Glasvezelaansluiting
  • Mechanische ventilatie
  • Douche
  • Bergruimte
  • Toilet

Buitenruimte

Balkon
Niet aanwezig
Tuin
Niet aanwezig
Dakterras
Niet aanwezig

Energie

Isolatie
Gedeeltelijk dubbele beglazing, Dakisolatie, Muurisolatie
Verwarming
CV-ketel
Warm water
CV-ketel
Cv-ketel
Intergas (Gas, uit 2013, Eigendom)
Energielabel
D

Parkeergelegenheid

Aanwezig
Ja
Soort parkeergelegenheid
Openbaar

Garage

Aanwezig
Nee
Meld een probleem met deze woning
Contact met de makelaar Bel