- 83 m²
- 3 kamers
- 1983
Samenvatting
- Deze woning wordt sinds 31 oktober 2025 aangeboden door Hauzer & Partners;
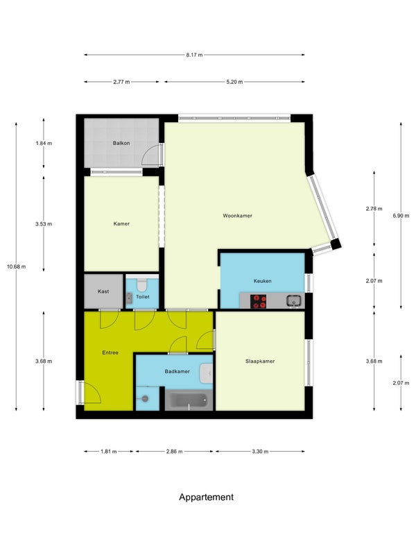
- De galerijflat heeft een woonoppervlakte van 83 m² en beschikt over 3 kamers, waarvan 1 slaapkamer;
- De woning is gebouwd In 1983 en ligt in de buurt Hagerhof-West in Venlo.
Beschrijving
Overdracht
- Vraagprijs
- € 279.760 k.k.
- Aangeboden sinds
- 31-10-2025
- Status
- Beschikbaar
- Beschikbaar
- In overleg
Oppervlakte en inhoud
- Woonoppervlakte
- 83 m²
Bouw
- Type woning
- Appartement
- Soort woning
- Galerijflat
- Soort bouw
- Bestaande bouw
- Bouwjaar
- 1983
Indeling
- Aantal kamers
- 3
- Aantal slaapkamers
- 1
- Aantal badkamers
- 1
Buitenruimte
- Dakterras
- Niet aanwezig
Energie
- Energielabel
- C
 
                 
                 
                 
                 
                 
                 
                 
                 
                 
                 
                 
                 
                 
                 
                 
                 
                