Contact met de makelaar

Deze woning is gevonden buiten ons eigen netwerk. Met de knop hieronder kom je direct bij de aanbieder terecht.

Koninginnesingel

Bekijk kaart
5911 KE Venlo (Winkelcentrum)
€ 299.000 k.k.
  • 102 m²
  • 3 kamers
  • 1964

Samenvatting

  • Deze woning wordt sinds 2 maanden aangeboden door Hauzer & Partners;
  • De galerijflat heeft een woonoppervlakte van 102 m² en beschikt over 3 kamers, waarvan 2 slaapkamers;
  • De woning is gebouwd In 1964 en ligt in de buurt Winkelcentrum in Venlo.

Beschrijving

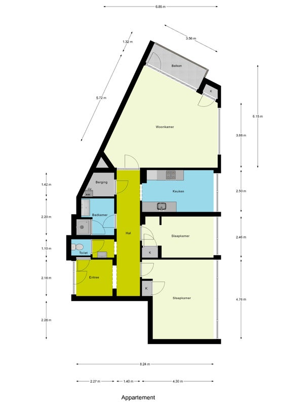
Dit ruime appartement van 102 m², gebouwd in 1964, biedt een ideale centrale ligging in het hart van Venlo. Op de derde en hoogste verdieping bereikt u het appartement gemakkelijk met de lift. Binnen vindt u een lichte woonkamer met toegang tot een balkon, een ruime gesloten keuken en twee slaapkamers. De badkamer beschikt over een douche en wastafel. Bovendien is er een aparte toilet aanwezig. Vanaf de afgesloten parkeerkelder heeft u een privé parkeerplaats en een fietsenberging. Het complex biedt CV-blokverwarming en de verwarmingskosten zijn opgenomen in de servicekosten van circa €300,- per maand. Met een inhoud van 335 m³ en een energielabel C is dit appartement zowel praktisch als comfortabel.

Reageer op tijd op nieuw woningaanbod

Meer dan de helft van de reacties komt binnen 48 uur. Ontvang direct notificaties bij nieuw aanbod en reageer sneller met Pararius+.

Probeer Pararius+ 14 dagen € 0,01

Overdracht

Vraagprijs
€ 299.000 k.k.
Aangeboden sinds
31-10-2025
Status
Beschikbaar
Beschikbaar
Per direct

Oppervlakte en inhoud

Woonoppervlakte
102 m²

Bouw

Type woning
Appartement
Soort woning
Galerijflat
Soort bouw
Bestaande bouw
Bouwjaar
1964

Indeling

Aantal kamers
3
Aantal slaapkamers
2
Aantal badkamers
1

Buitenruimte

Dakterras
Niet aanwezig

Energie

Energielabel
C
Meld een probleem met deze woning