Contact met de makelaar

Deze woning is gevonden buiten ons eigen netwerk. Met de knop hieronder kom je direct bij de aanbieder terecht.

Nieuw

Frederik van Eedenstraat 79

Bekijk kaart
2273 SK Voorburg (Bovenveen midden)
€ 250.000 k.k.
  • 57 m²
  • 4 kamers
  • 1950

Samenvatting

  • Deze woning wordt sinds 30 januari 2026 aangeboden door DOEN NVM Makelaars - Voorburg;
  • De galerijflat heeft een woonoppervlakte van 57 m² en beschikt over 4 kamers, waarvan 2 slaapkamers;
  • De woning is gebouwd In 1950 en ligt in de buurt Bovenveen midden in Voorburg.

Beschrijving

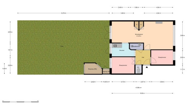
Klussers opgelet! Deze charmante parterrewoning in de populaire wijk Bovenveen heeft twee slaapkamers en een ruime, zonnige achtertuin van ongeveer 90 m², bereikbaar via een handige achterom. Het huis is perfect voor een frisse make-over en biedt een unieke kans om het naar jouw smaak in te richten.

Gelegen in een rustige straat met diverse buurtwinkels en openbaar vervoer, zijn het oude centrum van Voorburg en Den Haag eenvoudig per fiets bereikbaar.

De woning heeft een hal die toegang geeft tot een separaat toilet, een badkamer met inloopdouche en een lichte woon-/eetkamer met open haard. Openslaande deuren leiden naar de achtertuin. De afgesloten keuken heeft toegang tot zowel de woonkamer als de tuin. Omgeven door voorzieningen biedt deze woning veel potentieel.

Overdracht

Vraagprijs
€ 250.000 k.k.
Aangeboden sinds
30-01-2026
Status
Beschikbaar
Beschikbaar
Per direct

Oppervlakte en inhoud

Woonoppervlakte
57 m²

Bouw

Type woning
Appartement
Soort woning
Galerijflat
Soort bouw
Bestaande bouw
Bouwjaar
1950

Indeling

Aantal kamers
4
Aantal slaapkamers
2
Aantal badkamers
1

Buitenruimte

Dakterras
Niet aanwezig

Energie

Energielabel
G
Meld een probleem met deze woning