- 61 m²
- 4 kamers
- 1950
Samenvatting
- Deze woning wordt sinds 21 oktober 2025 aangeboden door Langezaal makelaars;
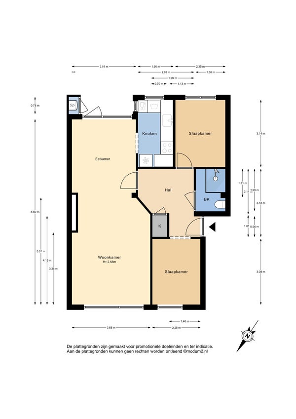
- De benedenwoning heeft een woonoppervlakte van 61 m² en beschikt over 4 kamers, waarvan 2 slaapkamers;
- De woning is gebouwd In 1950 en ligt in de buurt Bovenveen midden in Voorburg;
- De woning beschikt onder andere over de volgende voorzieningen: Kabel TV, Douche, Bergruimte, Toilet.
Beschrijving
Overdracht
- Vraagprijs
- € 410.000 k.k.
- Aangeboden sinds
- 21-10-2025
- Status
- Beschikbaar
- Beschikbaar
- In overleg
- Onderhoudsstaat
- Goed
Oppervlakte en inhoud
- Woonoppervlakte
- 61 m²
- Inhoud
- 196 m³
VvE informatie
- Inschrijving KvK
- Ja
- Jaarlijkse vergadering
- Ja
- Periodieke bijdrage
- Ja (€ 200 per maand)
- Reservefonds aanwezig
- Ja
- Onderhoudsplan
- Ja
- Opstalverzekering
- Ja
Bouw
- Type woning
- Appartement
- Soort woning
- Benedenwoning, Appartement
- Soort bouw
- Bestaande bouw
- Bouwjaar
- 1950
- Ligging
-
- Aan een rustige weg
- In een woonwijk
- Vrij uitzicht
Indeling
- Aantal kamers
- 4
- Aantal slaapkamers
- 2
- Aantal badkamers
- 1
- Aantal woonlagen
- 1
- Voorzieningen
-
- Kabel TV
- Douche
- Bergruimte
- Toilet
Buitenruimte
- Balkon
- Niet aanwezig
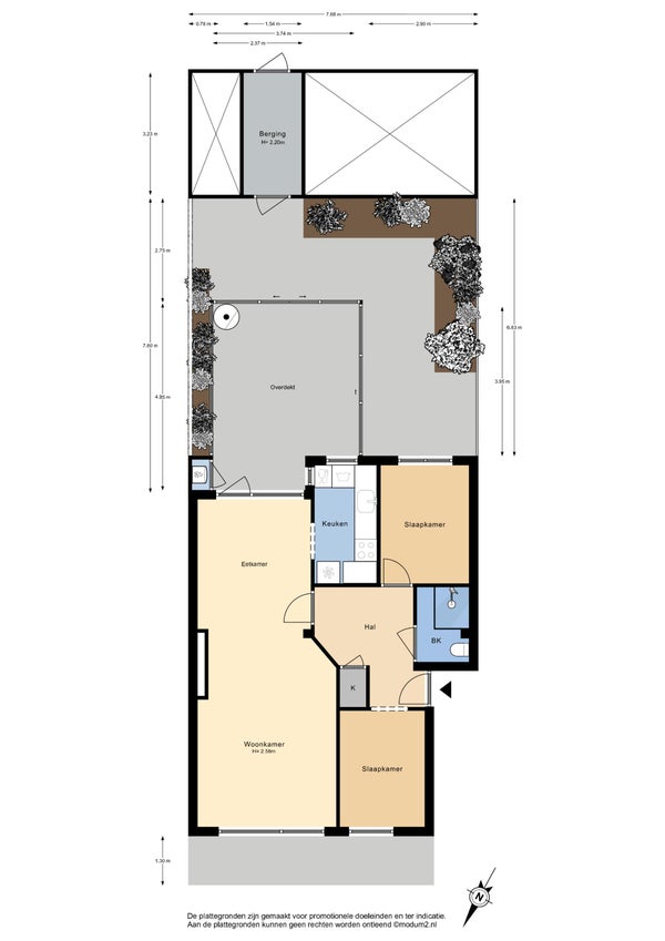
- Tuin
- Aanwezig (49 m², gelegen op het zuidoosten)
- Tuinbeschrijving
- achtertuin
- Dakterras
- Niet aanwezig
Energie
- Isolatie
- Dubbele beglazing
- Verwarming
- CV-ketel
- Warm water
- CV-ketel
- Cv-ketel
- Intergas (Gas, uit 2021, Eigendom)
- Energielabel
- C
Bergruimte
- Schuur/Berging
- Aanwezig
- Omschrijving
- Vrijstaand steen
Parkeergelegenheid
- Aanwezig
- Ja
- Soort parkeergelegenheid
- Openbaar
Garage
- Aanwezig
- Nee