Contact met de aanbieder

Deze woning is gevonden buiten ons eigen netwerk. Via de knop hieronder ga je direct naar de website van de aanbieder.

Nieuw

Herenstraat 164

Bekijk kaart
6001 XR Weert (Biest)
€ 215.000 k.k.
  • 52 m²
  • 2 kamers
  • 1954

Samenvatting

  • Deze woning wordt sinds 27 februari 2026 aangeboden door Laenen Makelaardij | VerschilMakelaar;
  • De galerijflat heeft een woonoppervlakte van 52 m² en beschikt over 2 kamers, waarvan 1 slaapkamer;
  • De woning is gebouwd In 1954 en ligt in de buurt Biest in Weert.

Beschrijving

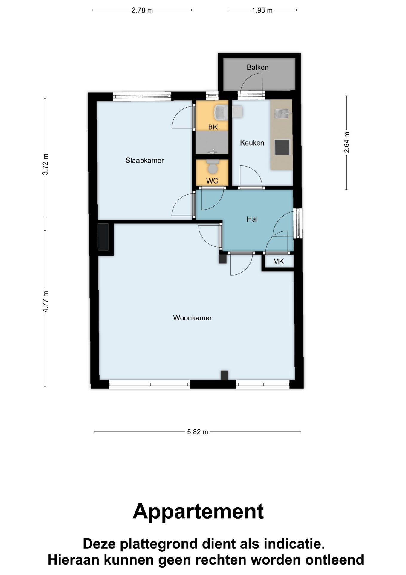
Op de derde woonlaag van een verzorgd appartementengebouw aan de Herenstraat 164 in Weert ligt dit lichte appartement, ideaal voor starters of stellen. De ruime woonkamer biedt plek voor een zit- en eethoek en kan eenvoudig als aparte kamer worden ingericht. Door de kunststof kozijnen met HR dubbel glas is er veel daglicht en een prettig binnenklimaat. De keuken is voorzien van een efficiënt keukenblok met moderne apparatuur. De rustige slaapkamer leidt naar een badkamer met douche en wastafel. Vanuit de hal zijn het toilet en de meterkast bereikbaar. Dit appartement, gebouwd in 1954, heeft een woonoppervlakte van 52 m², 1 slaapkamer en bestaat uit 2 kamers. Geniet van het zonnige balkon op het zuiden en de oorspronkelijke berging van 16 m² in het souterrain, ideaal voor opslag. Het appartement is goed onderhouden en klaar voor een nieuwe eigenaar.

Overdracht

Vraagprijs
€ 215.000 k.k.
Prijs per m²
€ 4.135
Aangeboden sinds
27-02-2026
Status
Beschikbaar
Beschikbaar
Per direct

Oppervlakte en inhoud

Woonoppervlakte
52 m²

Bouw

Type woning
Appartement
Soort woning
Galerijflat
Soort bouw
Bestaande bouw
Bouwjaar
1954

Indeling

Aantal kamers
2
Aantal slaapkamers
1
Aantal badkamers
1

Buitenruimte

Dakterras
Niet aanwezig

Energie

Energielabel
E
Meld een probleem met deze woning