Contact met de makelaar

Deze woning is gevonden buiten ons eigen netwerk. Met de knop hieronder kom je direct bij de aanbieder terecht.

Nieuw

Kerkstraat 237

Bekijk kaart
1521 JJ Wormerveer (Wormerveer Noord)
€ 250.000 k.k.
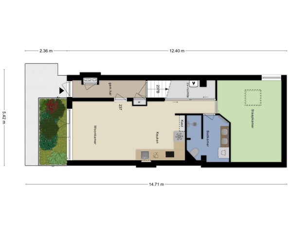
  • 55 m²
  • 2 kamers
  • 1960

Samenvatting

  • Deze woning wordt sinds 16 oktober 2025 aangeboden door Orange Wonen;
  • De benedenwoning heeft een woonoppervlakte van 55 m² en beschikt over 2 kamers, waarvan 1 slaapkamer;
  • De woning is gebouwd In 1960 en ligt in de buurt Wormerveer Noord in Wormerveer;
  • De woning beschikt onder andere over de volgende voorzieningen: Internetaansluiting, Rolgordijnen, Douche, Dakraam.

Beschrijving

Overdracht

Vraagprijs
€ 250.000 k.k.
Aangeboden sinds
16-10-2025
Status
Beschikbaar
Beschikbaar
In overleg
Onderhoudsstaat
Goed

Oppervlakte en inhoud

Woonoppervlakte
55 m²
Inhoud
180 m³

VvE informatie

Inschrijving KvK
Ja
Jaarlijkse vergadering
Ja
Periodieke bijdrage
Ja (€ 75 per maand)
Reservefonds aanwezig
Ja
Onderhoudsplan
Ja
Opstalverzekering
Ja

Bouw

Type woning
Appartement
Soort woning
Benedenwoning, Appartement
Soort bouw
Bestaande bouw
Bouwjaar
1960
Ligging
In een woonwijk

Indeling

Aantal kamers
2
Aantal slaapkamers
1
Aantal badkamers
1
Aantal woonlagen
1
Voorzieningen
  • Internetaansluiting
  • Rolgordijnen
  • Douche
  • Dakraam

Buitenruimte

Balkon
Niet aanwezig
Tuin
Aanwezig (8 m², gelegen op het noorden)
Dakterras
Niet aanwezig

Energie

Isolatie
Dubbele beglazing, Driedubbele beglazing
Energielabel
C

Bergruimte

Schuur/Berging
Niet aanwezig

Parkeergelegenheid

Aanwezig
Ja
Soort parkeergelegenheid
Openbaar

Garage

Aanwezig
Nee
Meld een probleem met deze woning
Contact met de makelaar Bel