- 73 m²
- 3 kamers
- 1961
Samenvatting
- Deze woning wordt sinds 1 oktober 2025 aangeboden door VHM Makelaars Aiking;
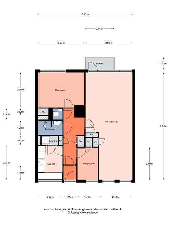
- De galerijflat heeft een woonoppervlakte van 73 m² en beschikt over 3 kamers, waarvan 2 slaapkamers;
- De woning is gebouwd In 1961 en ligt in de buurt Warnsveldsewegkwartier-Noord in Zutphen;
- De woning beschikt onder andere over de volgende voorzieningen: Douche, Toilet, Wasruimte.
Beschrijving
Overdracht
- Vraagprijs
- € 242.000 k.k.
- Aangeboden sinds
- 01-10-2025
- Status
- Beschikbaar
- Beschikbaar
- In overleg
- Onderhoudsstaat
- Zeer goed
Oppervlakte en inhoud
- Woonoppervlakte
- 73 m²
- Inhoud
- 232 m³
VvE informatie
- Inschrijving KvK
- Ja
- Jaarlijkse vergadering
- Ja
- Periodieke bijdrage
- Ja (€ 274 per maand)
- Reservefonds aanwezig
- Ja
- Onderhoudsplan
- Ja
- Opstalverzekering
- Ja
Bouw
- Type woning
- Appartement
- Soort woning
- Galerijflat, Appartement
- Soort bouw
- Bestaande bouw
- Bouwjaar
- 1961
- Ligging
-
- Aan een rustige weg
- In een woonwijk
- Nabij het openbaar vervoer
- Nabij een school
Indeling
- Aantal kamers
- 3
- Aantal slaapkamers
- 2
- Aantal badkamers
- 1
- Aantal woonlagen
- 1
- Voorzieningen
-
- Douche
- Toilet
- Wasruimte
Buitenruimte
- Balkon
- Niet aanwezig
- Dakterras
- Niet aanwezig
Energie
- Isolatie
- Dubbele beglazing
- Verwarming
- Blokverwarming
- Warm water
- Elektrische boiler
- Energielabel
- C
Bergruimte
- Schuur/Berging
- Aanwezig