Woning verhuren

Contact met de aanbieder

Deze woning is gevonden buiten ons eigen netwerk. Via de knop hieronder ga je direct naar de website van de aanbieder.

Nieuw

Te huur: Huis Op den Hoogen Boom 11 in in Beek

Bekijk kaart
6191 PE (Grootgenhout)
€ 1.700 per maand
  • 125 m²
  • 4 kamers
  • 1972

Beschrijving

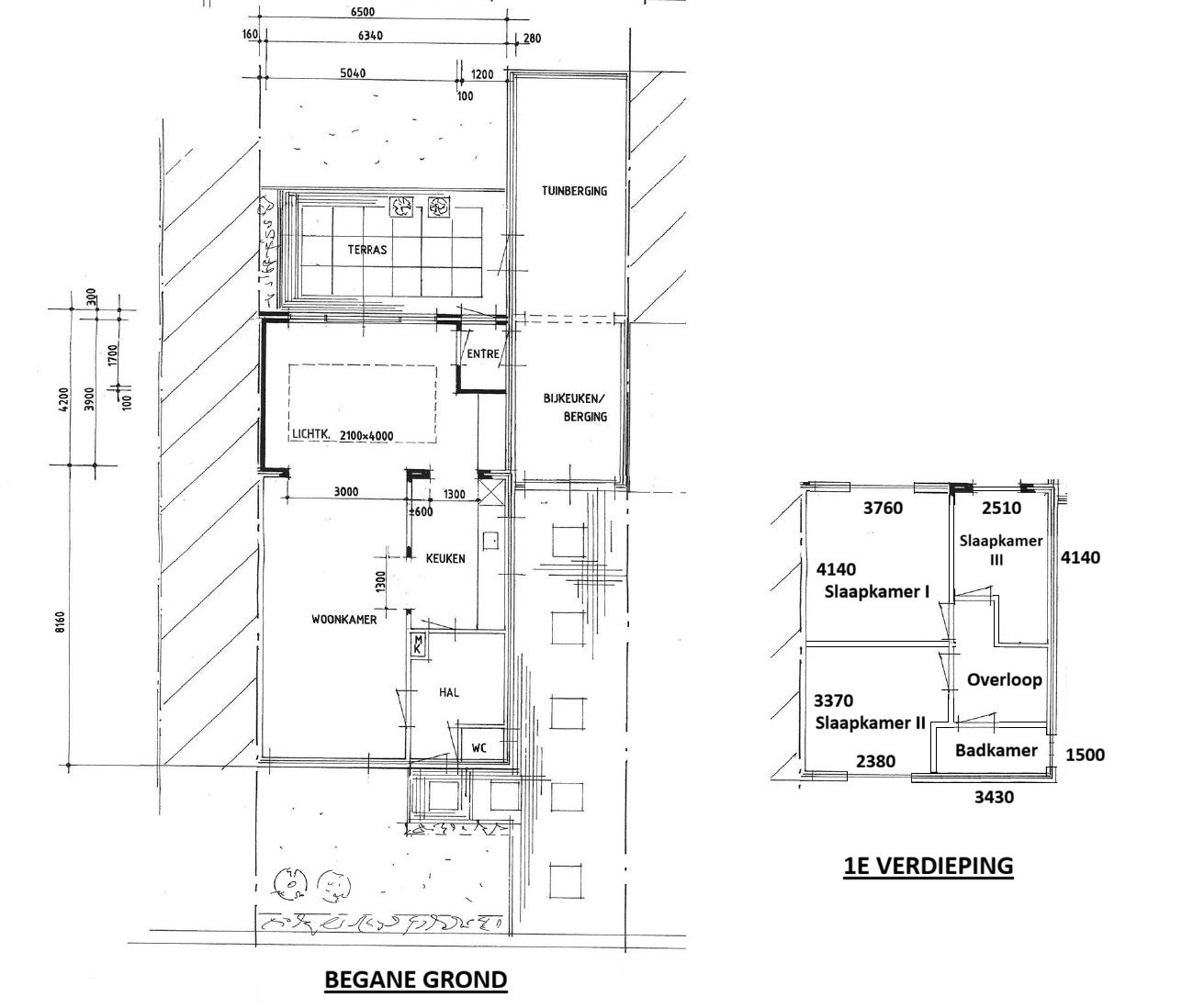
In het populaire Genhout staat een fraaie twee-onder-een-kapwoning met een stijlvolle aanbouw en lichtstraat. Deze woning beschikt over drie slaapkamers, een moderne badkamer en een diepe achtertuin met vrij uitzicht en een sfeervolle terrasoverkapping. De ruime oprit biedt plek voor meerdere auto's en er is een garage met aansluitingen voor witgoed. Binnenin zijn kunststof en aluminium kozijnen met HR++ beglazing en diverse isolaties die bijdragen aan energielabel B. De begane grond heeft een grote woonkamer en halfopen luxe keuken. Op de eerste verdieping bevinden zich de slaapkamers en de badkamer, terwijl de tweede verdieping als bergzolder dienstdoet. Genhout biedt een landelijke omgeving met winkelvoorzieningen en goede ontsluitingen. Ideaal voor gezinnen tot vier personen.

Overdracht

Huurprijs
€ 1.700 per maand
Prijs per m²
€ 14
Aangeboden sinds
26-02-2026
Status
Te huur
Beschikbaar
Per direct

Oppervlakte en inhoud

Woonoppervlakte
125 m²

Bouw

Type woning
Huis
Soort woning
Tussenwoning (rijtjeshuis), Eengezinswoning
Soort bouw
Bestaande bouw
Bouwjaar
1972

Indeling

Aantal kamers
4
Aantal slaapkamers
3
Aantal badkamers
1

Buitenruimte

Dakterras
Niet aanwezig
Meld een probleem met deze woning