Woning verhuren

Contact met de makelaar

Deze woning is gevonden buiten ons eigen netwerk. Met de knop hieronder kom je direct bij de aanbieder terecht.

Nieuw

Te huur: Huis Roelantlaan in Eindhoven

Bekijk kaart
5625 GT (Jagershoef)
€ 3.250 per maand
  • 183 m²
  • 8 kamers
  • Gestoffeerd

Beschrijving

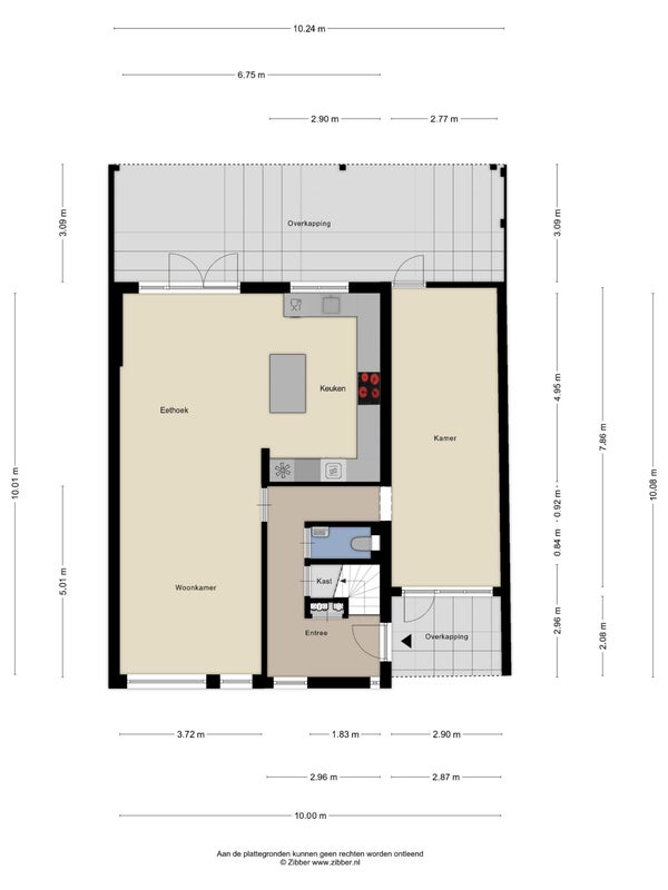
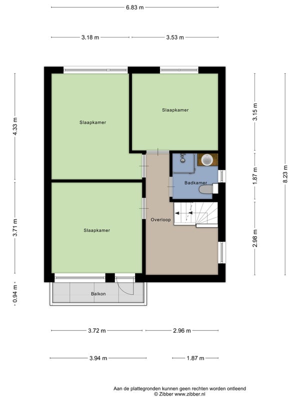
Aan de Roelantlaan 26 in Eindhoven staat deze volledig gerenoveerde twee-onder-een-kapwoning opgeslagen. Met een woonoppervlak van 183 m² en 8 kamers, waaronder 5 slaapkamers, is het huis instapklaar. De lichte woonkamer en de luxe open keuken zijn voorzien van nieuwe pvc-vloeren en vloerverwarming. Een aparte kantoorruimte op de begane grond biedt extra functionaliteit. De eerste verdieping heeft meerdere slaapkamers en een luxe badkamer, terwijl de tweede verdieping een ruime slaapkamer met airco en nog een luxe badkamer biedt. Buiten geniet je van een onderhoudsvriendelijke achtertuin met een overkapping van meer dan 30 m². Met energielabel A en 12 zonnepanelen is dit huis duurzaam en toekomstbestendig. Extra mogelijkheden zijn er voor slapen en baden op de begane grond.

Overdracht

Huurprijs
€ 3.250 per maand
Aangeboden sinds
20-01-2026
Status
Te huur
Beschikbaar
Per direct
Interieur
Gestoffeerd

Oppervlakte en inhoud

Woonoppervlakte
183 m²

Bouw

Type woning
Huis
Soort woning
Tussenwoning (rijtjeshuis), Eengezinswoning
Soort bouw
Bestaande bouw

Indeling

Aantal kamers
8
Aantal slaapkamers
5
Aantal badkamers
2

Buitenruimte

Dakterras
Niet aanwezig
Meld een probleem met deze woning