Woning verhuren

Contact met de makelaar

Deze woning is gevonden buiten ons eigen netwerk. Met de knop hieronder kom je direct bij de aanbieder terecht.

Te huur: Huis Meerenburgerhorn in IJsselstein

Bekijk kaart
3401 CC (Kasteelkwartier)
€ 2.500 per maand
  • 105 m²
  • 4 kamers
  • Gemeubileerd

Exclusief voor jou

Deze woning is voor jou beschikbaar via je persoonlijke notificatie en verschijnt niet in de zoekresultaten.

Beschrijving

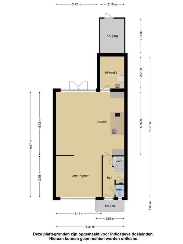
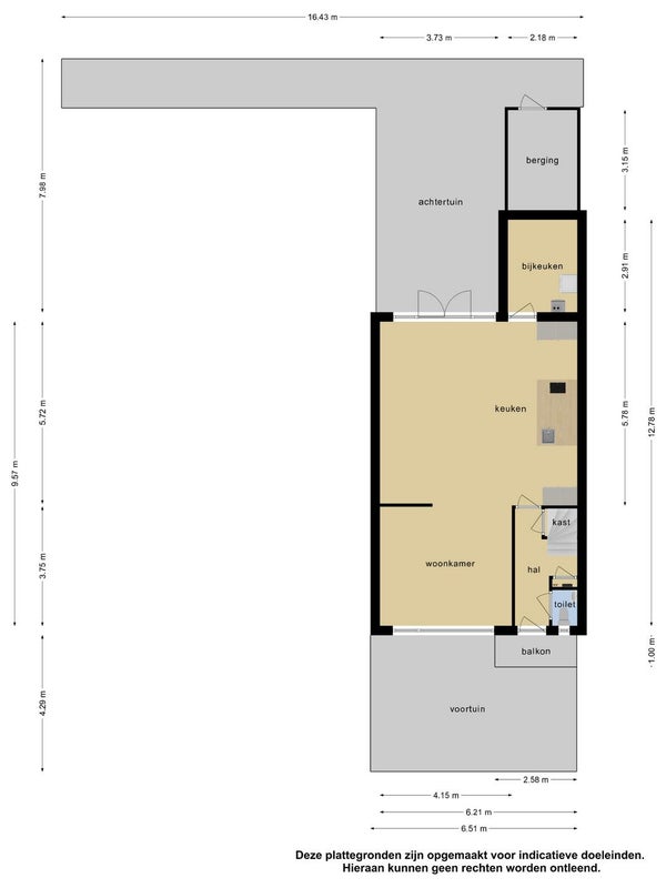
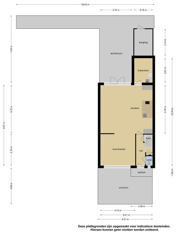
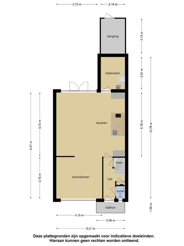
Deze luxe eengezinswoning in IJsselstein is volledig gemeubileerd en biedt alle comfort. De moderne woonkeuken en de gezellige woonkamer maken het tot een ideale tijdelijke huurwoning. Met 3 slaapkamers, een moderne badkamer en een grote bergzolder is er genoeg ruimte. De woning is recent gemoderniseerd en ligt op loopafstand van het centrum met horeca en winkels. Huurtermijn minimaal 6 maanden.

Overdracht

Huurprijs
€ 2.500 per maand
Aangeboden sinds
18-11-2025
Status
Te huur
Beschikbaar
Per direct
Interieur
Gemeubileerd

Oppervlakte en inhoud

Woonoppervlakte
105 m²

Bouw

Type woning
Huis
Soort woning
Tussenwoning (rijtjeshuis), Eengezinswoning
Soort bouw
Bestaande bouw
Bouwjaar
1960

Indeling

Aantal kamers
4
Aantal slaapkamers
3
Aantal badkamers
1

Buitenruimte

Dakterras
Niet aanwezig

Huurvoorwaarden

Doelgroep
Werkende
Meld een probleem met deze woning