Te huur: Huis Overburgkade in Voorburg
Bekijk kaart- 145 m²
- 5 kamers
- Gestoffeerd
Beschrijving
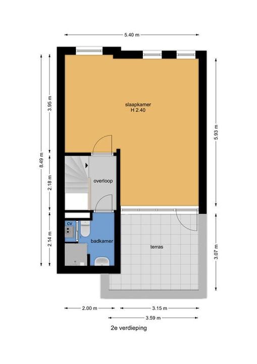
Ruime, deels gemeubileerde eengezinswoning met 3 slaapkamers en 2 badkamers in de kindvriendelijke wijk "Voorburg West", op slechts 15 minuten van het centrum van Den Haag. De woning heeft een aparte entree, moderne gastentoilet en een lichte woonkamer met tegelvloer en schuifdeuren naar een zonnig terras en goed onderhouden achtertuin met vijver en schuur. De open keuken is van alle gemakken voorzien, zoals een koelkast, vaatwasser en gasfornuis. Op de eerste verdieping zijn twee slaapkamers, een badkamer met douche en aparte toilet, en op de tweede verdieping een grote slaapkamer met dakterras en tweede badkamer. De woning heeft dubbele beglazing en een energielabel B. Er is voldoende parkeergelegenheid op straat. Huurprijs is € 3250 per maand, waarborgsom is € 3250.
Overdracht
- Huurprijs
-
€ 3.250 per maand
- Aangeboden sinds
- 19-01-2026
- Status
- Te huur
- Beschikbaar
- Per direct
- Interieur
- Gestoffeerd
Oppervlakte en inhoud
- Woonoppervlakte
- 145 m²
Bouw
- Type woning
- Huis
- Soort woning
- Tussenwoning (rijtjeshuis), Eengezinswoning
- Soort bouw
- Bestaande bouw
Indeling
- Aantal kamers
- 5
- Aantal slaapkamers
- 3
- Aantal badkamers
- 2
Buitenruimte
- Dakterras
- Niet aanwezig