- 105 m²
- 5 kamers
- 2011
Exclusief voor jou
Deze woning is voor jou beschikbaar via je persoonlijke notificatie en verschijnt niet in de zoekresultaten.
Beschrijving
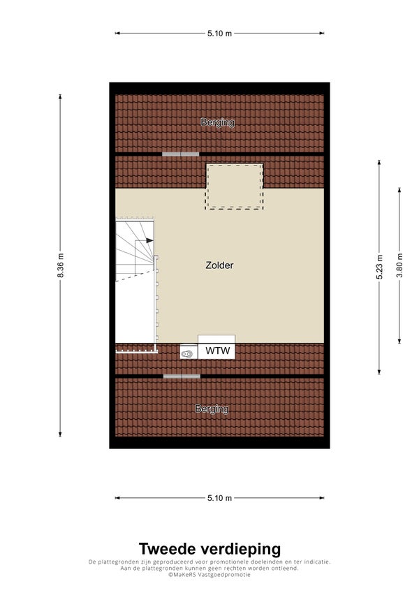
Te huur is een moderne energiezuinige stadswoning uit 2018, met 3 slaapkamers en een knusse onderhoudsvriendelijke stadstuin. De woning ligt in een rustige, centrale locatie op loopafstand van het Weerter stadscentrum en het NS-Intercitystation. Dit maakt het eenvoudig om het bruisende centrum van Eindhoven binnen 16 minuten te bereiken. De woning heeft een ruime ontvangsthal, een gezellige woonkamer met open keuken, en biedt toegang tot een praktische berging. Op de eerste verdieping zijn drie slaapkamers en een volledig betegelde badkamer met inloopdouche. De zolderverdieping kan met een kleine ingreep worden omgebouwd tot extra slaapkamer. De tuin is volledig betegeld en omheind. Huurprijs bedraagt €1475 per maand, exclusief gas, elektra en water.
Overdracht
- Huurprijs
-
€ 1.475 per maand
- Aangeboden sinds
- 17-12-2025
- Status
- Te huur
- Beschikbaar
- Per direct
Oppervlakte en inhoud
- Woonoppervlakte
- 105 m²
Bouw
- Type woning
- Huis
- Soort woning
- Tussenwoning (rijtjeshuis), Eengezinswoning
- Soort bouw
- Bestaande bouw
- Bouwjaar
- 2011
Indeling
- Aantal kamers
- 5
- Aantal slaapkamers
- 3
- Aantal badkamers
- 1
Buitenruimte
- Dakterras
- Niet aanwezig
Energie
- Energielabel
- A
Huurvoorwaarden
- Doelgroep
- Werkende