Woning verhuren

Contact met de makelaar

Deze woning is gevonden buiten ons eigen netwerk. Met de knop hieronder kom je direct bij de aanbieder terecht.

Nieuw

Te huur: Huis Motreastraat in Zwaag

Bekijk kaart
1689 CZ (Zwaag - Buurt 30 01)
€ 1.690 per maand
  • 103 m²
  • 5 kamers
  • 2022

Exclusief voor jou

Deze woning is voor jou beschikbaar via je persoonlijke notificatie en verschijnt niet in de zoekresultaten.

Beschrijving

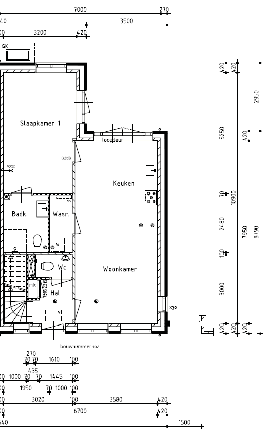
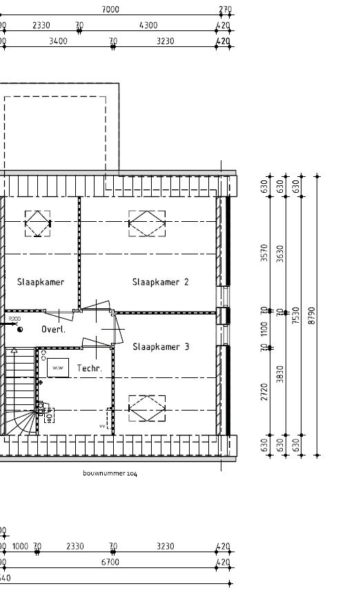
In de Rozenbuurt van Zwaag ligt deze nieuwbouw twee-onder-één-kapwoning, ideaal voor gelijkvloers wonen. De woning biedt een slaapkamer en volledige badkamer op de begane grond, plus drie extra slaapkamers op de eerste verdieping. De ruime woonkamer en keuken zijn in rechte opstelling. Met energielabel A+++ en vloerverwarming op elke verdieping, is deze woning goed geïsoleerd. De keuken is voorzien van moderne apparatuur en de badkamer heeft een inloopdouche. Buiten zijn er een achter- en voortuin. Voorzien van zonnepanelen en een externe berging. De huurprijs bedraagt € 1.690,- per maand, met een waarborgsom van € 3.380,- en oplevering in februari 2026. Permanente bewoning is mogelijk in deze onderhoudsvriendelijke woonruimte.

Overdracht

Huurprijs
€ 1.690 per maand
Aangeboden sinds
02-01-2026
Status
Te huur
Beschikbaar
Per 01-02-2026

Oppervlakte en inhoud

Woonoppervlakte
103 m²

Bouw

Type woning
Huis
Soort woning
Tussenwoning (rijtjeshuis), Eengezinswoning
Soort bouw
Bestaande bouw
Bouwjaar
2022

Indeling

Aantal kamers
5
Aantal slaapkamers
4
Aantal badkamers
1

Buitenruimte

Dakterras
Niet aanwezig

Huurvoorwaarden

Doelgroep
Werkende
Meld een probleem met deze woning