- 354 m²
- 6 kamers
- 1951
Samenvatting
- Deze woning wordt sinds 30 oktober 2025 aangeboden door Makelaar 1;
- De vrijstaande woning heeft een woonoppervlakte van 354 m² en beschikt over 6 kamers, waarvan 5 slaapkamers;
- De woning is gebouwd In 1951 en ligt in de buurt Aerdenhout-Centrum in Aerdenhout;
- De woning beschikt onder andere over de volgende voorzieningen: Alarm, Bad, Kabel TV, Dakkapel, Glasvezelaansluiting, Rookkanaal, Douche, Bergruimte, Toilet, Wasruimte.
Beschrijving
Meer woninginformatie bekijken?
Log in of registreer gratis.
Overdracht
- Vraagprijs
- € 4.750.000 k.k.
- Aangeboden sinds
- 30-10-2025
- Status
- Beschikbaar
- Beschikbaar
- In overleg
- Onderhoudsstaat
- Zeer goed
Oppervlakte en inhoud
- Woonoppervlakte
- 354 m²
- Perceeloppervlakte
- 3.760 m²
- Inhoud
- 1.668 m³
Bouw
- Type woning
- Huis
- Soort woning
- Vrijstaande woning, Landgoed
- Soort bouw
- Bestaande bouw
- Bouwjaar
- 1951
- Ligging
-
- Aan een rustige weg
- In bosrijke omgeving
- Beschut gelegen
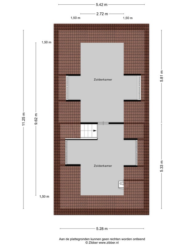
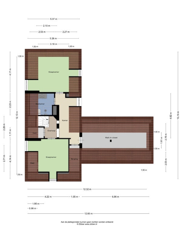
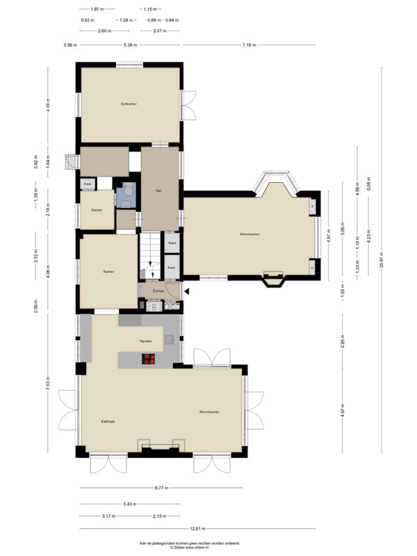
Indeling
- Aantal kamers
- 6
- Aantal slaapkamers
- 5
- Aantal badkamers
- 2
- Aantal woonlagen
- 3
- Voorzieningen
-
- Alarm
- Bad
- Kabel TV
- Dakkapel
- Glasvezelaansluiting
- Rookkanaal
- Douche
- Bergruimte
- Toilet
- Wasruimte
Buitenruimte
- Balkon
- Aanwezig
- Tuin
- Aanwezig
- Tuinbeschrijving
- tuin rondom, patio atrium, plaats, zonneterras
- Dakterras
- Niet aanwezig
Energie
- Isolatie
- Dubbele beglazing, Vloerisolatie, HR glas, Dakisolatie
- Verwarming
- CV-ketel, Open haard, Gedeeltelijke vloerverwarming, Gashaard
- Warm water
- CV-ketel
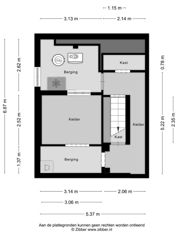
Bergruimte
- Schuur/Berging
- Aanwezig
- Omschrijving
- Inpandig
Parkeergelegenheid
- Aanwezig
- Ja
- Soort parkeergelegenheid
- Op eigen terrein
Garage
- Aanwezig
- Ja
- Omschrijving
- Vrijstaand steen