Contact met de makelaar

Deze woning is gevonden buiten ons eigen netwerk. Met de knop hieronder kom je direct bij de aanbieder terecht.

Foarwei 21 23

Bekijk kaart
9294 KC Aldwâld (Oudwoude)
€ 250.000 k.k.
  • 76 m²
  • 3 kamers
  • 1998

Samenvatting

  • Deze woning wordt sinds 2 oktober 2025 aangeboden door De Flexibele Makelaar;
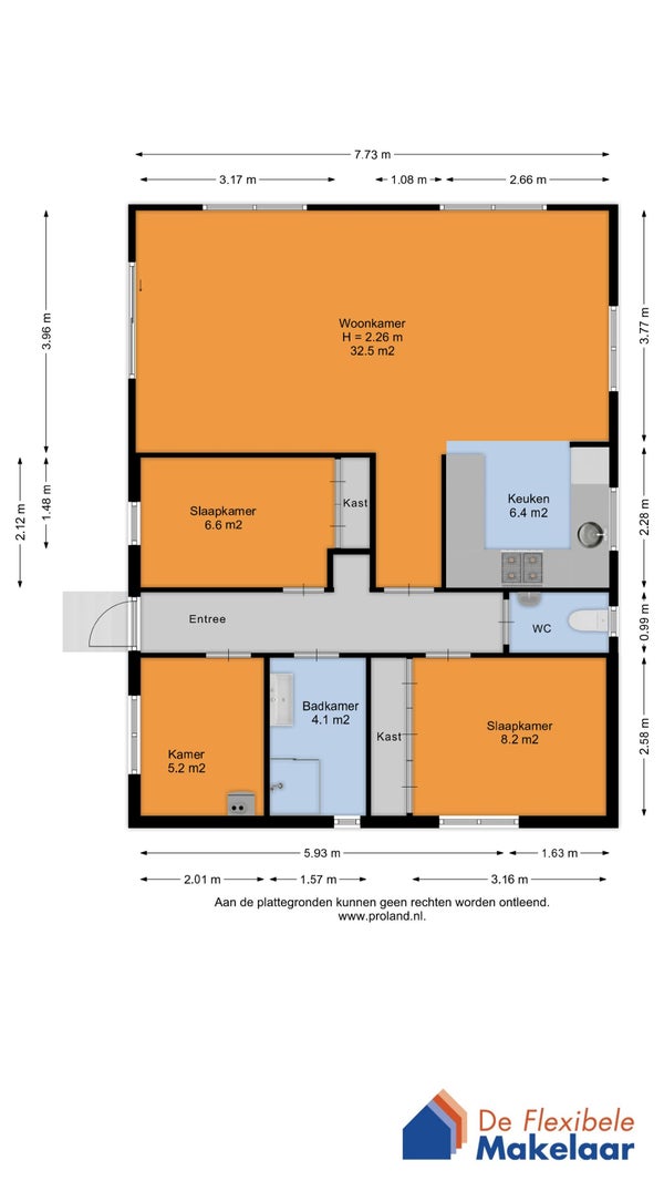
  • De vrijstaande woning heeft een woonoppervlakte van 76 m² en beschikt over 3 kamers, waarvan 2 slaapkamers;
  • De woning is gebouwd In 1998 en ligt in de buurt Oudwoude in Aldwâld;
  • De woning beschikt onder andere over de volgende voorzieningen: Kabel TV, Douche, Schuifdeuren, Toilet.

Beschrijving

Overdracht

Vraagprijs
€ 250.000 k.k.
Aangeboden sinds
02-10-2025
Status
Beschikbaar
Beschikbaar
In overleg
Bijzonderheden
Mindervalide woning, Seniorenwoning
Onderhoudsstaat
Goed

Oppervlakte en inhoud

Woonoppervlakte
76 m²
Perceeloppervlakte
573 m²
Inhoud
348 m³

Bouw

Type woning
Huis
Soort woning
Vrijstaande woning, Bungalow
Soort bouw
Bestaande bouw
Bouwjaar
1998
Ligging
  • Aan een rustige weg
  • Aan vaarwater
  • Aan een park
  • Aan het water
  • In een woonwijk
  • Landelijk gebied
  • Vrij uitzicht

Indeling

Aantal kamers
3
Aantal slaapkamers
2
Aantal badkamers
1
Aantal woonlagen
1
Voorzieningen
  • Kabel TV
  • Douche
  • Schuifdeuren
  • Toilet

Buitenruimte

Balkon
Niet aanwezig
Tuin
Aanwezig (450 m²)
Tuinbeschrijving
tuin rondom, achtertuin, voortuin, zijtuin
Dakterras
Niet aanwezig

Energie

Isolatie
Dubbele beglazing, Vloerisolatie, Volledig geïsoleerd, HR glas, Dakisolatie, Muurisolatie
Verwarming
CV-ketel
Warm water
CV-ketel
Cv-ketel
Intergas (Gas, uit 2021, Gehuurd)
Energielabel
B

Bergruimte

Schuur/Berging
Aanwezig
Omschrijving
Vrijstaand hout

Parkeergelegenheid

Aanwezig
Ja
Soort parkeergelegenheid
Openbaar
Omschrijving
Op eigen terrein, meer ruimte op het park.

Garage

Aanwezig
Nee
Meld een probleem met deze woning
Contact met de makelaar Bel