Contact met de makelaar

Deze woning is gevonden buiten ons eigen netwerk. Met de knop hieronder kom je direct bij de aanbieder terecht.

Rumbastraat

Bekijk kaart
1326 NK Almere (Danswijk Noordoost)
€ 425.000 k.k.
  • 113 m²
  • 5 kamers
  • 1997

Samenvatting

  • Deze woning wordt sinds 2 maanden aangeboden door Inter Immo Amsterdam;
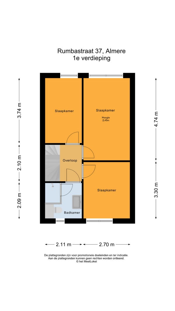
  • De tussenwoning heeft een woonoppervlakte van 113 m² en beschikt over 5 kamers, waarvan 4 slaapkamers;
  • De woning is gebouwd In 1997 en ligt in de buurt Danswijk Noordoost in Almere.

Beschrijving

Deze keurig verzorgde eengezinswoning in de Danswijk biedt een comfortabele levensstijl. Op de begane grond vindt u een ruime uitgebouwde woonkamer met een half open keuken en een zonnige, onderhoudsarme tuin. De keuken is compleet ingericht met moderne apparatuur en voldoende opbergruimte. Op de eerste verdieping zijn drie slaapkamers en een nette badkamer met douchecabine, tweede toilet en wastafel aanwezig. Via de trap bereikt u de tweede verdieping, waar een ruime zolderkamer met dakkapel zich bevindt, ideaal voor een vierde slaapkamer. De zuidoost gelegen achtertuin heeft een houten berging en een veranda voor gezellige momenten buiten. Gelegen in een kindvriendelijke buurt, dichtbij scholen en openbaar vervoer, met snelle verbinding naar de A6 en A27.

Overdracht

Vraagprijs
€ 425.000 k.k.
Aangeboden sinds
30-10-2025
Status
Beschikbaar
Beschikbaar
Per direct

Oppervlakte en inhoud

Woonoppervlakte
113 m²

Bouw

Type woning
Huis
Soort woning
Tussenwoning (rijtjeshuis), Eengezinswoning
Soort bouw
Bestaande bouw
Bouwjaar
1997

Indeling

Aantal kamers
5
Aantal slaapkamers
4
Aantal badkamers
1

Buitenruimte

Dakterras
Niet aanwezig
Meld een probleem met deze woning