Contact met de aanbieder

Deze woning is gevonden buiten ons eigen netwerk. Via de knop hieronder ga je direct naar de website van de aanbieder.

Verkocht onder voorbehoud

Nieuwe Diepstraat 15

Bekijk kaart
1316 JC Almere (Waterwijk West)
€ 415.000 k.k.
  • 99 m²
  • 4 kamers
  • 1984

Samenvatting

  • Deze woning wordt sinds 8 weken aangeboden door STERK! Makelaars;
  • De tussenwoning heeft een woonoppervlakte van 99 m² en beschikt over 4 kamers, waarvan 3 slaapkamers;
  • De woning is gebouwd In 1984 en ligt in de buurt Waterwijk West in Almere.

Beschrijving

Ruime ééngezinswoning aan een mooi groen speelplantsoen – ENERGIELABEL A – met volop potentie!

Aan een groen en gezellig speelplantsoen in de geliefde Waterwijk ligt deze eengezinswoning met parkeergelegenheid op eigen terrein, een dakopbouw op de eerste verdieping, een dakkapel op de tweede verdieping en een fijne achtertuin op het noordwesten. De woning biedt een uitstekende basis en is bij uitstek geschikt voor kopers die verder hun eigen woonwensen willen realiseren. Met wat extra liefde en aandacht is hier een heerlijk thuis van te maken.

De woning is bovendien energiezuinig (energielabel A) en voorzien van kunststof kozijnen met dubbele beglazing, wat zorgt voor lage energielasten en weinig onderhoud – een groot pluspunt voor de toekomst.

Via de entree bereikt u de hal met modern vrijhangend toilet, meterkast en trapopgang. De tuingerichte woonkamer beschikt over een tuindeur en een praktische trapkast. Aan de voorzijde bevindt zich de open keuken in U-opstelling met granieten werkblad en diverse inbouwapparatuur.
De begane grond is voorzien van een laminaatvloer.

De achtertuin is onderhoudsvriendelijk aangelegd met sierbestrating en beschikt over een vrijstaande houten berging met elektra en een eigen achterom. Door de ligging op het noordwesten kunt u hier in de middag en avond heerlijk van de zon genieten.

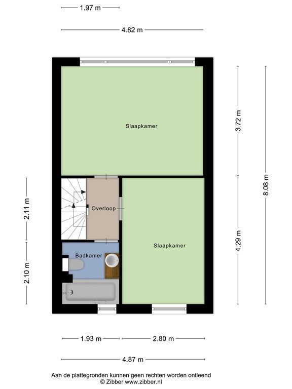
Op de eerste verdieping bevinden zich twee ruime slaapkamers en de badkamer. De slaapkamer aan de achterzijde is extra ruim dankzij de in 2008 geplaatste dakopbouw met kunststof draai-/kiepramen. De badkamer is uitgevoerd met ligbad, wastafelmeubel en toilet. Deze verdieping is eveneens voorzien van laminaat.

De tweede verdieping biedt een derde slaapkamer met dakraam, radiator en een vliering. Op de overloop bevindt zich de aansluiting voor de wasmachine.

Bijzonderheden:

Energielabel A
Dakopbouw aan de achterzijde (2008) en dakkapel op de tweede verdieping
Kunststof kozijnen en kunststof gevelbekleding dakopbouw
Glasvezelaansluiting
Buitenkranen voor en achter
Parkeergelegenheid op eigen terrein
Vrije ligging aan groen plantsoen
Horren voor de ramen
Aanvaarding in overleg

De Waterwijk is een complete en kindvriendelijke woonomgeving met winkels, scholen, sportvoorzieningen, recreatiegebied Leegwaterplas, het strand van de Noorderplassen, het centrum van Almere-Stad en uitvalswegen richting de A6 op korte loop- en fietsafstand.

Een energiezuinige woning met ruimte, ligging én potentie – ideaal voor een stel of gezin om er verder een eigen droomhuis van te maken.

Stuur ons (via ****** of direct) een mail of bel ons, dan maken wij graag een afspraak met u om deze fijne woning aan u te laten zien.

Overdracht

Vraagprijs
€ 415.000 k.k.
Aangeboden sinds
24-12-2025
Status
Verkocht onder voorbehoud
Beschikbaar
In overleg
Onderhoudsstaat
Goed

Oppervlakte en inhoud

Woonoppervlakte
99 m²
Perceeloppervlakte
130 m²
Inhoud
349 m³

Bouw

Type woning
Huis
Soort woning
Tussenwoning (rijtjeshuis), Eengezinswoning
Soort bouw
Bestaande bouw
Bouwjaar
1984
Ligging
In een woonwijk

Indeling

Aantal kamers
4
Aantal slaapkamers
3
Aantal badkamers
1
Aantal woonlagen
3
Voorzieningen
  • Toilet
  • Wasruimte

Buitenruimte

Balkon
Niet aanwezig
Tuin
Aanwezig (55 m², gelegen op het noordwesten)
Tuinbeschrijving
achtertuin
Achterom
Aanwezig
Dakterras
Niet aanwezig

Energie

Isolatie
Dubbele beglazing, Vloerisolatie, Volledig geïsoleerd, Dakisolatie, Muurisolatie
Verwarming
Stadsverwarming
Energielabel
A

Bergruimte

Schuur/Berging
Aanwezig

Parkeergelegenheid

Aanwezig
Ja
Soort parkeergelegenheid
Openbaar
Meld een probleem met deze woning