Contact met de aanbieder

Deze woning is gevonden buiten ons eigen netwerk. Via de knop hieronder ga je direct naar de website van de aanbieder.

Nieuw

Schapenmeent 67

Bekijk kaart
1357 GE Almere (Rietmeent en Dijkmeent)
€ 450.000 k.k.
  • 120 m²
  • 5 kamers
  • 1980

Samenvatting

  • Deze woning wordt sinds 2 maart 2026 aangeboden door De Huizenbemiddelaar Amsterdam;
  • De tussenwoning heeft een woonoppervlakte van 120 m² en beschikt over 5 kamers, waarvan 4 slaapkamers;
  • De woning is gebouwd In 1980 en ligt in de buurt Rietmeent en Dijkmeent in Almere;
  • De woning beschikt onder andere over de volgende voorzieningen: Rookkanaal, Internetaansluiting, Douche, Dakraam, Schuifdeuren, Toilet, Wasruimte.

Beschrijving

Achter deze rustige gevel wacht een verrassend licht en sfeervol thuis, aangeboden met een bieden vanaf prijs

Schapenmeent 67 is zo’n huis dat je positief verrast zodra je binnenstapt. Achter de rustige gevel schuilt een lichte, modern afgewerkte tussenwoning met een woonoppervlakte van 120 m², verdeeld over meerdere volwaardige verdiepingen. Alles voelt verzorgd, logisch en goed onderhouden, waardoor je hier zonder grote werkzaamheden kunt intrekken.

Wat deze woning onderscheidt, is de combinatie van comfort en sfeer. De basis is strak en eigentijds, maar tegelijkertijd warm en uitnodigend. Grote raampartijen zorgen voor veel daglicht en geven het huis een open karakter. Tegelijkertijd is er ruimte om bepaalde onderdelen naar eigen smaak verder te verfijnen, waardoor je het geheel echt persoonlijk kunt maken. Dit is geen standaard tussenwoning, maar een huis dat klopt in indeling, afwerking en uitstraling – en dat voel je direct wanneer je er rondloopt.

Schapenmeent ligt in een rustige woonomgeving met veel groen en speelruimte in de directe nabijheid. Hier woon je in een straat waar kinderen nog gewoon buiten spelen en buren elkaar kennen. Basisscholen, sportverenigingen en winkels bevinden zich op korte afstand, net als openbaar vervoer en uitvalswegen richting de A6 en A27.

Ook natuurliefhebbers zitten hier goed: in de omgeving vind je diverse wandel- en fietsroutes langs water en groenstroken. De ligging biedt precies die balans die veel mensen zoeken – rustig wonen, maar met alles wat je dagelijks nodig hebt binnen handbereik.

Via de entree kom je in een nette hal met meterkast, modern toilet en de trapopgang. Zodra je de woonkamer binnenstapt, valt direct de fijne lichtinval op. De brede raampartij aan de voorzijde zorgt voor een open en aangename sfeer. Aan de voorzijde is ruimte voor een royale zithoek, waarbij de houtkachel een sfeervol middelpunt vormt. Hier zit je ’s avonds heerlijk, met warmte en rust om je heen.

De ruimte loopt vanzelf door richting de open keuken aan de achterzijde, waardoor het geheel ruim en logisch aanvoelt. De keuken is uitgevoerd in een moderne hoekopstelling met witte fronten en een betonlook werkblad. Voorzien van een gaskookplaat, afzuigkap, combi-oven, vaatwasser en koelkast is alles aanwezig voor dagelijks comfort. Aangrenzend vind je een praktische berging voorzien van elektra en toegang tot de achtertuin. Via de schuifpui stap je eveneens zo de tuin in.

Op de eerste verdieping bevinden zich drie slaapkamers, elk met een prettige maatvoering en een fijne lichtinval. De kamers zijn praktisch in te richten en daardoor ook geschikt als kinder-, werk- of logeerkamer.

De badkamer is prima qua formaat, en biedt ruimte voor modernisering naar eigen smaak. Hier ligt een mooie kans om jouw ideale badkamer te realiseren, afgestemd op je eigen wensen en stijl.

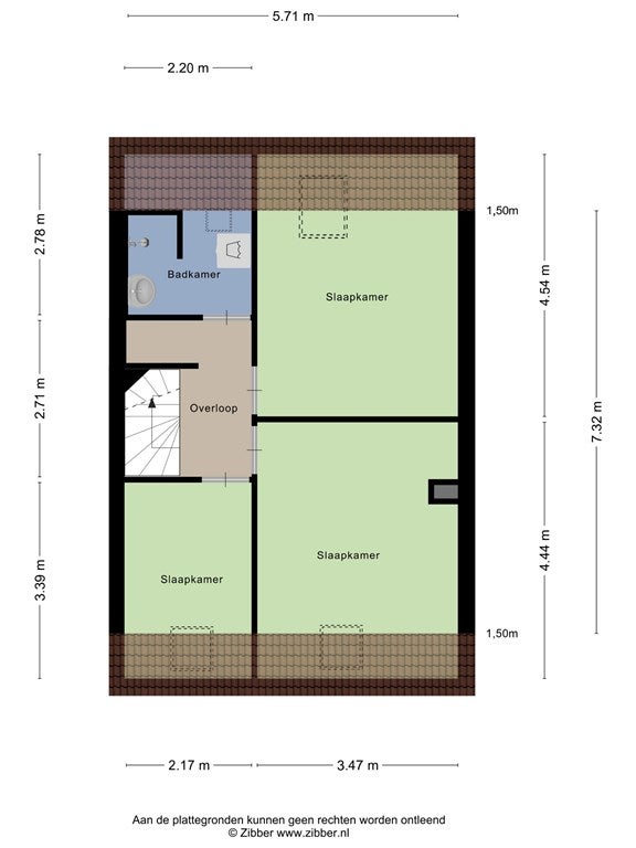
De tweede verdieping voelt verrassend ruim aan. Op de overloop bevinden zich de aansluitingen voor wasmachine en droger, netjes gepositioneerd onder het raam. Daarnaast is hier een volwaardige vierde slaapkamer met een grote raampartij die zorgt voor prettig daglicht. De schuine kap geeft de ruimte karakter zonder dat het ten koste gaat van de bruikbare meters. Dit is een verdieping die zich moeiteloos leent als master bedroom, rustige werkplek of een combinatie daarvan.

De achtertuin is onderhoudsvriendelijk aangelegd met bestrating en biedt voldoende ruimte voor een eettafel en/of loungehoek. Dankzij de erfafscheidingen geniet je hier van privacy en beschutting.

Achter in de tuin staat een ruime houten berging, ideaal voor fietsen, gereedschap of hobbyspullen. Het geheel voelt verzorgd en overzichtelijk aan: een tuin waar je weinig omkijken naar hebt, maar wel volop van kunt genieten.

Bijzonderheden

  • Lichte tussenwoning
  • Moderne en verzorgde afwerking, uitstekend onderhouden
  • Woonoppervlakte: 120 m²
  • Sfeervolle houtkachel in de woonkamer
  • Open keuken met moderne inbouwapparatuur
  • Vier slaapkamers
  • De badkamer vraagt om modernisering
  • Onderhoudsvriendelijke achtertuin
  • Vrijstaande houten berging
  • Gelegen in rustige en kindvriendelijke woonwijk
  • Goede bereikbaarheid richting A6 en A27

Schapenmeent 67 is een woning die je niet hoeft te overtuigen – je merkt het vanzelf wanneer je binnen bent. De ruimtes kloppen, het licht doet zijn werk en de sfeer voelt direct prettig aan. Met een solide basis en ruimte voor eigen invulling ligt hier een huis waar je jarenlang vooruit kunt. Plan een bezichtiging en ervaar zelf hoe comfortabel wonen hier voelt.

Via de entree kom je in een nette hal met meterkast, modern toilet en de trapopgang. Zodra je de woonkamer binnenstapt, valt direct de fijne lichtinval op. De brede raampartij aan de voorzijde zorgt voor een open en aangename sfeer. Aan de voorzijde is ruimte voor een royale zithoek, waarbij de houtkachel een sfeervol middelpunt vormt. Hier zit je ’s avonds heerlijk, met warmte en rust om je heen.

De ruimte loopt vanzelf door richting de open keuken aan de achterzijde, waardoor het geheel ruim en logisch aanvoelt. De keuken is uitgevoerd in een moderne hoekopstelling met witte fronten en een betonlook werkblad. Voorzien van een gaskookplaat, afzuigkap, combi-oven, vaatwasser en koelkast is alles aanwezig voor dagelijks comfort. Aangrenzend vind je een praktische berging voorzien van elektra en toegang tot de achtertuin. Via de schuifpui stap je eveneens zo de tuin in.

Op de eerste verdieping bevinden zich drie slaapkamers, elk met een prettige maatvoering en een fijne lichtinval. De kamers zijn praktisch in te richten en daardoor ook geschikt als kinder-, werk- of logeerkamer. De badkamer is functioneel ingericht, en biedt ruimte voor modernisering naar eigen smaak. Hier ligt een mooie kans om jouw ideale badkamer te realiseren, afgestemd op je eigen wensen en stijl.

De tweede verdieping voelt verrassend ruim aan. Op de overloop bevinden zich de aansluitingen voor wasmachine en droger, netjes gepositioneerd onder het raam. Daarnaast is hier een volwaardige vierde slaapkamer met een grote raampartij die zorgt voor prettig daglicht. De schuine kap geeft de ruimte karakter zonder dat het ten koste gaat van de bruikbare meters. Dit is een verdieping die zich moeiteloos leent als master bedroom, rustige werkplek of een combinatie daarvan.

De achtertuin is onderhoudsvriendelijk aangelegd met bestrating en biedt voldoende ruimte voor een eettafel en/of loungehoek. Dankzij de erfafscheidingen geniet je hier van privacy en beschutting. Achter in de tuin staat een ruime houten berging, ideaal voor fietsen, gereedschap of hobbyspullen. Het geheel voelt verzorgd en overzichtelijk aan: een tuin waar je weinig omkijken naar hebt, maar wel volop van kunt genieten.

• Lichte tussenwoning
• Moderne en verzorgde afwerking, uitstekend onderhouden
• Woonoppervlakte: 119,5 m²
• Sfeervolle houtkachel in de woonkamer
• Open keuken met moderne inbouwapparatuur
• Vier slaapkamers
• Badkamer met mogelijkheid tot eigen modernisering
• Onderhoudsvriendelijke achtertuin
• Vrijstaande houten berging
• Gelegen in rustige en kindvriendelijke woonwijk
• Goede bereikbaarheid richting A6 en A27

Afsluiting
Schapenmeent 67 is een woning die je niet hoeft te overtuigen – je merkt het vanzelf wanneer je binnen bent. De ruimtes kloppen, het licht doet zijn werk en de sfeer voelt direct prettig aan. Met een solide basis en ruimte voor eigen invulling ligt hier een huis waar je jarenlang vooruit kunt. Plan een bezichtiging en ervaar zelf hoe comfortabel wonen hier voelt.

Overdracht

Vraagprijs
€ 450.000 k.k.
Prijs per m²
€ 3.750
Aangeboden sinds
02-03-2026
Status
Beschikbaar
Beschikbaar
In overleg
Onderhoudsstaat
Goed

Oppervlakte en inhoud

Woonoppervlakte
120 m²
Perceeloppervlakte
130 m²
Inhoud
442 m³

Bouw

Type woning
Huis
Soort woning
Tussenwoning (rijtjeshuis), Eengezinswoning
Soort bouw
Bestaande bouw
Bouwjaar
1980
Ligging
  • Aan een rustige weg
  • In een woonwijk
  • Nabij het openbaar vervoer
  • Nabij een school

Indeling

Aantal kamers
5
Aantal slaapkamers
4
Aantal badkamers
1
Aantal woonlagen
3
Voorzieningen
  • Rookkanaal
  • Internetaansluiting
  • Douche
  • Dakraam
  • Schuifdeuren
  • Toilet
  • Wasruimte

Buitenruimte

Balkon
Niet aanwezig
Tuin
Aanwezig (60 m², gelegen op het westen)
Tuinbeschrijving
achtertuin
Achterom
Aanwezig
Dakterras
Niet aanwezig

Energie

Isolatie
Dakisolatie
Verwarming
CV-ketel, Gedeeltelijke vloerverwarming, Houtkachel
Warm water
CV-ketel
Cv-ketel
Intergas Extreme 36 (Gas, uit 2023, Eigendom)
Energielabel
B

Bergruimte

Schuur/Berging
Aanwezig

Parkeergelegenheid

Aanwezig
Ja
Soort parkeergelegenheid
Openbaar
Meld een probleem met deze woning