Contact met de makelaar

Deze woning is gevonden buiten ons eigen netwerk. Met de knop hieronder kom je direct bij de aanbieder terecht.

Nieuw

De Oude Wereld 61

Bekijk kaart
2408 NV Alphen aan den Rijn (De Oude Wereld-Oost)
€ 475.000 k.k.
  • 114 m²
  • 5 kamers
  • 1992

Samenvatting

  • Deze woning wordt sinds 21 oktober 2025 aangeboden door De Wekker Wonen;
  • De tussenwoning heeft een woonoppervlakte van 114 m² en beschikt over 5 kamers, waarvan 3 slaapkamers;
  • De woning is gebouwd In 1992 en ligt in de buurt De Oude Wereld-Oost in Alphen aan den Rijn;
  • De woning beschikt onder andere over de volgende voorzieningen: Kabel TV, Glasvezelaansluiting, Rolluiken, Dakraam.

Beschrijving

Overdracht

Vraagprijs
€ 475.000 k.k.
Aangeboden sinds
21-10-2025
Status
Beschikbaar
Beschikbaar
In overleg
Onderhoudsstaat
Goed

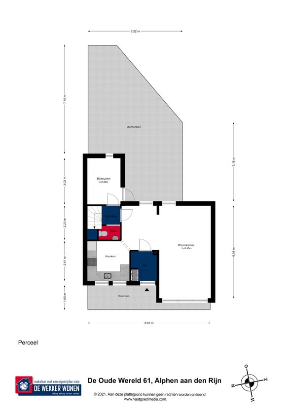
Oppervlakte en inhoud

Woonoppervlakte
114 m²
Perceeloppervlakte
111 m²
Inhoud
412 m³

Bouw

Type woning
Huis
Soort woning
Tussenwoning (rijtjeshuis), Eengezinswoning
Soort bouw
Bestaande bouw
Bouwjaar
1992
Ligging
In een woonwijk

Indeling

Aantal kamers
5
Aantal slaapkamers
3
Aantal woonlagen
3
Voorzieningen
  • Kabel TV
  • Glasvezelaansluiting
  • Rolluiken
  • Dakraam

Buitenruimte

Balkon
Niet aanwezig
Tuin
Aanwezig (45 m², gelegen op het zuidoosten)
Tuinbeschrijving
achtertuin, voortuin
Dakterras
Niet aanwezig

Energie

Isolatie
Volledig geïsoleerd
Verwarming
CV-ketel
Warm water
CV-ketel
Cv-ketel
Warmtewisselaar (2019) (Gas, uit 2019, Eigendom)
Energielabel
B

Parkeergelegenheid

Aanwezig
Ja
Soort parkeergelegenheid
Openbaar

Garage

Aanwezig
Nee
Meld een probleem met deze woning
Contact met de makelaar Bel