Contact met de aanbieder

Deze woning is gevonden buiten ons eigen netwerk. Via de knop hieronder ga je direct naar de website van de aanbieder.

Nieuw

Mauritslaan 6 HS

Bekijk kaart
1182 BC Amstelveen (Oranjebuurt)
€ 650.000 k.k.
  • 96 m²
  • 2 kamers
  • 1948

Samenvatting

  • Deze woning wordt sinds 21 februari 2026 aangeboden door PB Makelaars o.z.;
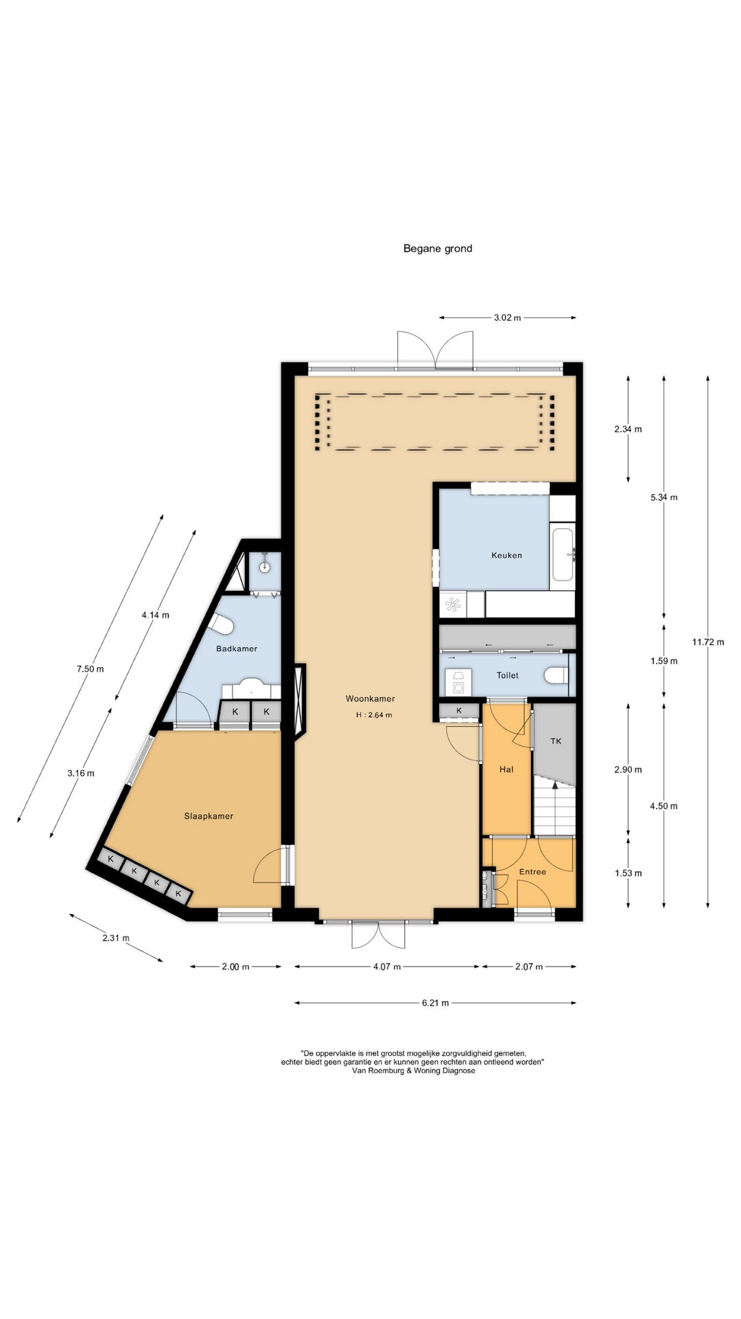
  • De tussenwoning heeft een woonoppervlakte van 96 m² en beschikt over 2 kamers, waarvan 1 slaapkamer;
  • De woning is gebouwd In 1948 en ligt in de buurt Oranjebuurt in Amstelveen.

Beschrijving

Dit benedenwoning in Amstelveen, gebouwd in 1948, is een rustige plek om te wonen. Je vindt er 96 m² woonoppervlakte, met een indeling van 2 kamers, waaronder 1 slaapkamer. De badkamer is voorzien van een wastafelmeubel, douche, toilet en bidet. De woning ligt op de eerste woonlaag en heeft een eigen achtertuin van 60 m², ideaal gelegen op het noordwesten. Er zijn ook een voortuin en zijtuin. Voor de praktische zaken zijn er mechanische ventilatie, een alarminstallatie, openslaande deuren en een C.V.-ketel uit 2019 aanwezig. De ligging is gunstig, aan de bosrand, en in een rustige woonwijk nabij het centrum. Met een maandelijkse VVE-bijdrage van €58,- en goede isolatie met dubbel glas, is dit appartement een interessante optie.

Overdracht

Vraagprijs
€ 650.000 k.k.
Prijs per m²
€ 6.771
Aangeboden sinds
21-02-2026
Status
Beschikbaar
Beschikbaar
Per direct

Oppervlakte en inhoud

Woonoppervlakte
96 m²

Bouw

Type woning
Huis
Soort woning
Tussenwoning (rijtjeshuis), Eengezinswoning
Soort bouw
Bestaande bouw
Bouwjaar
1948

Indeling

Aantal kamers
2
Aantal slaapkamers
1
Aantal badkamers
1

Buitenruimte

Dakterras
Niet aanwezig

Energie

Energielabel
D
Meld een probleem met deze woning