Contact met de makelaar

Deze woning is gevonden buiten ons eigen netwerk. Met de knop hieronder kom je direct bij de aanbieder terecht.

Nieuw

Amsterdamseweg

Bekijk kaart
1182 HR Amstelveen (Oranjebuurt)
€ 2.150.000 k.k.
  • 261 m²
  • 9 kamers
  • 1924

Samenvatting

  • Deze woning wordt sinds 22 januari 2026 aangeboden door Von Poll Real Estate;
  • De tussenwoning heeft een woonoppervlakte van 261 m² en beschikt over 9 kamers, waarvan 6 slaapkamers;
  • De woning is gebouwd In 1924 en ligt in de buurt Oranjebuurt in Amstelveen.

Beschrijving

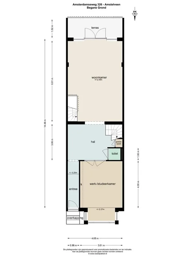
Dit stijlvolle en ruime familiehuis van 261 m² biedt een geweldige combinatie van comfort en functionaliteit op een gewilde locatie. Bij binnenkomst vind je een praktische indeling met een heerlijke living, een veranda, een ruime woonkeuken, zes slaapkamers, drie badkamers en vier wc's. De diepe zonnige achtertuin heeft een berging en er is een eigen parkeerplaats. Een aparte entree in het souterrain maakt het ideaal voor gasten of een inwonend kind. De woning is energiezuinig met energielabel A en beschikt over moderne technieken, zoals een alarm en IT-systeem dat veiligheid garandeert.

In de nabijheid vind je diverse winkels, horecagelegenheden en scholen, wat het perfect maakt voor gezinnen. Het is goed bereikbaar via de A9 en A10 en met het openbaar vervoer. De woonkeuken is voorzien van hoogwaardige apparatuur en de bel-etage herbergt een sfeervolle living met toegang tot de veranda.

Overdracht

Vraagprijs
€ 2.150.000 k.k.
Aangeboden sinds
22-01-2026
Status
Beschikbaar
Beschikbaar
Per direct

Oppervlakte en inhoud

Woonoppervlakte
261 m²
Perceeloppervlakte
247 m²

Bouw

Type woning
Huis
Soort woning
Tussenwoning (rijtjeshuis), Eengezinswoning
Soort bouw
Bestaande bouw
Bouwjaar
1924

Indeling

Aantal kamers
9
Aantal slaapkamers
6
Aantal badkamers
3

Buitenruimte

Dakterras
Niet aanwezig

Energie

Energielabel
A
Meld een probleem met deze woning