Contact met de makelaar

Deze woning is gevonden buiten ons eigen netwerk. Met de knop hieronder kom je direct bij de aanbieder terecht.

Nieuw

Sportlaan 4

Bekijk kaart
1619 XE Andijk (Andijk Centrum)
€ 289.000 k.k.
  • 91 m²
  • 4 kamers
  • 1968

Samenvatting

  • Deze woning wordt sinds 20 oktober 2025 aangeboden door Kuin Makelaardij;
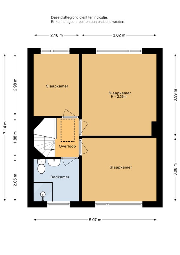
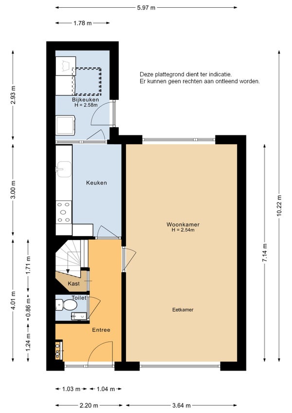
  • De tussenwoning heeft een woonoppervlakte van 91 m² en beschikt over 4 kamers, waarvan 3 slaapkamers;
  • De woning is gebouwd In 1968 en ligt in de buurt Andijk Centrum in Andijk;
  • De woning beschikt onder andere over de volgende voorzieningen: Airconditioning, Kabel TV, Douche, Toilet.

Beschrijving

Meer woninginformatie bekijken?

Log in of registreer gratis.

Overdracht

Vraagprijs
€ 289.000 k.k.
Aangeboden sinds
20-10-2025
Status
Beschikbaar
Beschikbaar
In overleg
Onderhoudsstaat
Redelijk

Oppervlakte en inhoud

Woonoppervlakte
91 m²
Perceeloppervlakte
160 m²
Inhoud
371 m³

Bouw

Type woning
Huis
Soort woning
Tussenwoning (rijtjeshuis), Eengezinswoning
Soort bouw
Bestaande bouw
Bouwjaar
1968
Ligging
  • Aan een rustige weg
  • In het centrum
  • In een woonwijk

Indeling

Aantal kamers
4
Aantal slaapkamers
3
Aantal badkamers
1
Aantal woonlagen
3
Voorzieningen
  • Airconditioning
  • Kabel TV
  • Douche
  • Toilet

Buitenruimte

Balkon
Niet aanwezig
Tuin
Aanwezig (68 m², gelegen op het zuidoosten)
Tuinbeschrijving
achtertuin, voortuin
Dakterras
Niet aanwezig

Energie

Isolatie
Dubbele beglazing, Muurisolatie
Verwarming
CV-ketel
Warm water
CV-ketel
Cv-ketel
Remeha (Gas, uit 2021, Eigendom)
Energielabel
B

Bergruimte

Schuur/Berging
Aanwezig
Omschrijving
Vrijstaand steen

Parkeergelegenheid

Aanwezig
Ja
Soort parkeergelegenheid
Openbaar

Garage

Aanwezig
Nee
Meld een probleem met deze woning
Contact met de makelaar Bel