Contact met de makelaar

Deze woning is gevonden buiten ons eigen netwerk. Met de knop hieronder kom je direct bij de aanbieder terecht.

Nieuw

Waterrijklaan 1

Bekijk kaart
1566 TT Assendelft (Waterrijk)
€ 579.000 k.k.
  • 123 m²
  • 5 kamers
  • 2001

Samenvatting

  • Deze woning wordt sinds 18 oktober 2025 aangeboden door Mijn Huis Verkoop Ik Zelf;
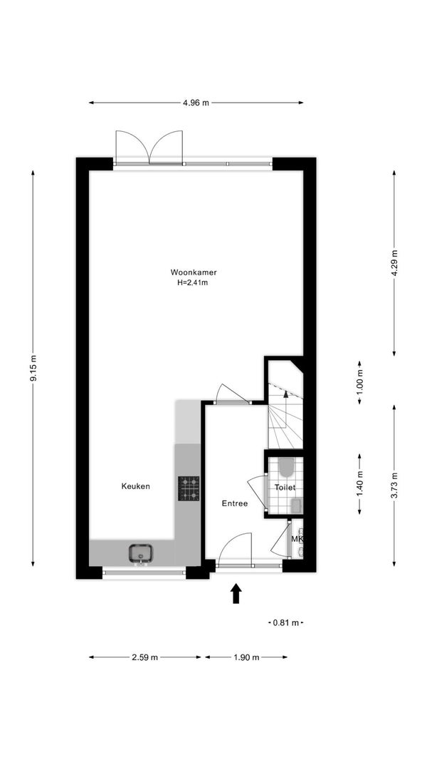
  • De hoekwoning heeft een woonoppervlakte van 123 m² en beschikt over 5 kamers;
  • De woning is gebouwd In 2001 en ligt in de buurt Waterrijk in Assendelft.

Beschrijving

Meer woninginformatie bekijken?

Log in of registreer gratis.

Overdracht

Vraagprijs
€ 579.000 k.k.
Aangeboden sinds
18-10-2025
Status
Beschikbaar
Beschikbaar
In overleg

Oppervlakte en inhoud

Woonoppervlakte
123 m²
Perceeloppervlakte
119 m²
Inhoud
409 m³

Bouw

Type woning
Huis
Soort woning
Hoekwoning, Eengezinswoning
Soort bouw
Bestaande bouw
Bouwjaar
2001

Indeling

Aantal kamers
5

Buitenruimte

Tuin
Aanwezig
Dakterras
Niet aanwezig

Energie

Energielabel
A

Garage

Aanwezig
Nee
Meld een probleem met deze woning
Contact met de makelaar Bel