Contact met de makelaar

Deze woning is gevonden buiten ons eigen netwerk. Met de knop hieronder kom je direct bij de aanbieder terecht.

Nieuw

Emmencamp 1

Bekijk kaart
5721 LH Asten (Ostade)
€ 635.000 k.k.
  • 203 m²
  • 6 kamers
  • 1975

Samenvatting

  • Deze woning wordt sinds 27 januari 2026 aangeboden door Beter Wonen makelaardij Helma de Corte;
  • De tussenwoning heeft een woonoppervlakte van 203 m² en beschikt over 6 kamers, waarvan 4 slaapkamers;
  • De woning is gebouwd In 1975 en ligt in de buurt Ostade in Asten.

Beschrijving

Deze vrijstaande woning biedt veel leefruimte op drie verdiepingen en is geheel onderkelderd. Er is een ruime oprit voor meerdere auto’s en een inpandige garage van 25 m². De woning is rustig gelegen nabij het Klokkengieterspad en op korte afstand van het centrum. De woonkamer heeft een zithoek aan de voorzijde met veel daglicht, een open haard en een schuifpui naar de tuin. De eetkamer is toegankelijk vanuit de woonkamer en de keuken. Op de eerste verdieping zijn drie ruime slaapkamers en twee badkamers. De tweede verdieping biedt een voorzolder en een vierde slaapkamer. De kelder bevat een portaal, grote (wijn)kelder en multifunctionele ruimte. De tuin ligt op het zuidoosten met een overkapping en toegang via een poort aan de zijkant. Het huis heeft een energielabel C en recente verbeteringen aan de kozijnen.

Overdracht

Vraagprijs
€ 635.000 k.k.
Aangeboden sinds
27-01-2026
Status
Beschikbaar
Beschikbaar
Per direct

Oppervlakte en inhoud

Woonoppervlakte
203 m²
Perceeloppervlakte
468 m²

Bouw

Type woning
Huis
Soort woning
Tussenwoning (rijtjeshuis), Eengezinswoning
Soort bouw
Bestaande bouw
Bouwjaar
1975

Indeling

Aantal kamers
6
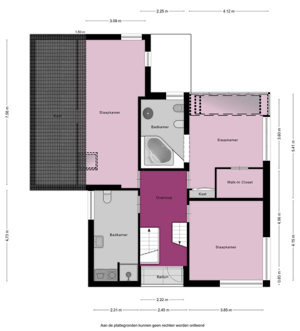
Aantal slaapkamers
4
Aantal badkamers
2

Buitenruimte

Dakterras
Niet aanwezig

Energie

Energielabel
C
Meld een probleem met deze woning