- 122 m²
- 5 kamers
- 1996
Samenvatting
- Deze woning wordt sinds 15 oktober 2025 aangeboden door Van den Hurk Makelaars;
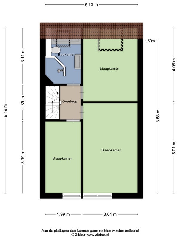
- De tussenwoning heeft een woonoppervlakte van 122 m² en beschikt over 5 kamers, waarvan 4 slaapkamers;
- De woning is gebouwd In 1996 en ligt in de buurt Beek in Beek en Donk;
- De woning beschikt onder andere over de volgende voorzieningen: Bad, Kabel TV, Dakkapel, Rolluiken, Douche, Dakraam, Schuifdeuren, Toilet, Wasruimte.
Beschrijving
Overdracht
- Vraagprijs
- € 400.000 k.k.
- Aangeboden sinds
- 15-10-2025
- Status
- Beschikbaar
- Beschikbaar
- In overleg
- Onderhoudsstaat
- Goed
Oppervlakte en inhoud
- Woonoppervlakte
- 122 m²
- Perceeloppervlakte
- 147 m²
- Inhoud
- 436 m³
Bouw
- Type woning
- Huis
- Soort woning
- Tussenwoning (rijtjeshuis), Eengezinswoning
- Soort bouw
- Bestaande bouw
- Bouwjaar
- 1996
- Ligging
- In een woonwijk
Indeling
- Aantal kamers
- 5
- Aantal slaapkamers
- 4
- Aantal badkamers
- 1
- Aantal woonlagen
- 3
- Voorzieningen
-
- Bad
- Kabel TV
- Dakkapel
- Rolluiken
- Douche
- Dakraam
- Schuifdeuren
- Toilet
- Wasruimte
Buitenruimte
- Balkon
- Niet aanwezig
- Tuin
- Aanwezig (63 m², gelegen op het zuidoosten)
- Tuinbeschrijving
- achtertuin, voortuin
- Dakterras
- Niet aanwezig
Energie
- Isolatie
- Volledig geïsoleerd
- Verwarming
- CV-ketel
- Warm water
- CV-ketel
- Cv-ketel
- Nefit (Gas, uit 2008, Eigendom)
- Energielabel
- B
Bergruimte
- Schuur/Berging
- Aanwezig
- Omschrijving
- Vrijstaand steen
Parkeergelegenheid
- Aanwezig
- Ja
- Soort parkeergelegenheid
- Openbaar
Garage
- Aanwezig
- Nee