Contact met de makelaar

Deze woning is gevonden buiten ons eigen netwerk. Met de knop hieronder kom je direct bij de aanbieder terecht.

Nieuw

Hoefslag 10

Bekijk kaart
6681 TL Bemmel (Essenpas)
€ 619.000 k.k.
  • 179 m²
  • 6 kamers
  • 2008

Samenvatting

  • Deze woning wordt sinds 28 januari 2026 aangeboden door Frans Knorth Makelaardij;
  • De tussenwoning heeft een woonoppervlakte van 179 m² en beschikt over 6 kamers, waarvan 3 slaapkamers;
  • De woning is gebouwd In 2008 en ligt in de buurt Essenpas in Bemmel.

Beschrijving

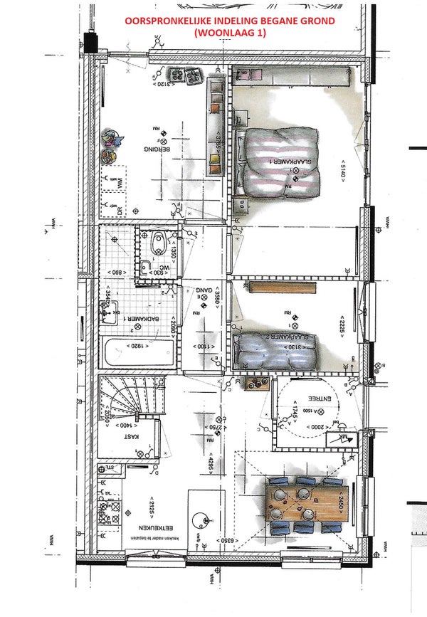
Dit unieke herenhuis in de Essenpas biedt stijlvolle en ruime woonmogelijkheden. De royale hoekwoning aan de Hoefslag 10 heeft vier woonlagen. Op de begane grond vind je twee sfeervolle woonkamers, een multifunctionele werkkamer en een compacte badkamer. De eerste verdieping herbergt een open leefkeuken met een kookeiland en toegang tot een riante dakterras van 52 m². Op de tweede verdieping zijn twee slaapkamers, een spectaculaire slaapkamer met glazen dakserre en een moderne badkamer. De derde verdieping biedt een derde slaapkamer en praktische bergruimte. Het huis beschikt over twee privéparkeerplaatsen en is gelegen in een groene, kindvriendelijke buurt. Kortom, luxe en functionaliteit komen hier samen.

Overdracht

Vraagprijs
€ 619.000 k.k.
Aangeboden sinds
28-01-2026
Status
Beschikbaar
Beschikbaar
Per direct

Oppervlakte en inhoud

Woonoppervlakte
179 m²
Perceeloppervlakte
88 m²

Bouw

Type woning
Huis
Soort woning
Tussenwoning (rijtjeshuis), Eengezinswoning
Soort bouw
Bestaande bouw
Bouwjaar
2008

Indeling

Aantal kamers
6
Aantal slaapkamers
3
Aantal badkamers
2

Buitenruimte

Dakterras
Niet aanwezig

Energie

Energielabel
B
Meld een probleem met deze woning