Contact met de aanbieder

Deze woning is gevonden buiten ons eigen netwerk. Via de knop hieronder ga je direct naar de website van de aanbieder.

Hoek 11

Bekijk kaart
5571 GJ Bergeijk (Broekstraat-Hoek-Lijnt-Eijkereind)
€ 698.000 k.k.
  • 126 m²
  • 6 kamers
  • 1976

Samenvatting

  • Deze woning wordt sinds 24 februari 2026 aangeboden door Hennie Kunnen Makelaardij;
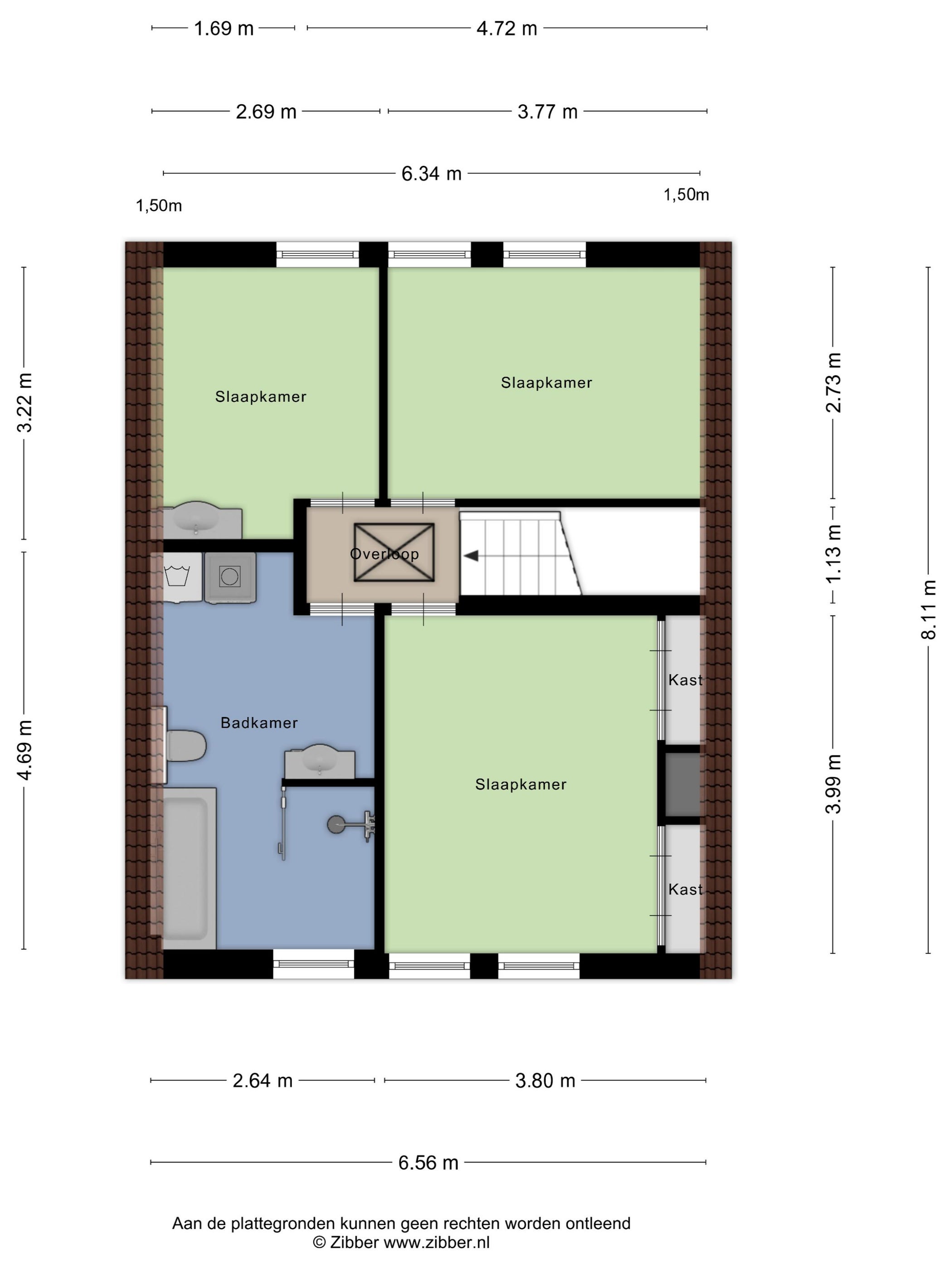
  • De tussenwoning heeft een woonoppervlakte van 126 m² en beschikt over 6 kamers, waarvan 4 slaapkamers;
  • De woning is gebouwd In 1976 en ligt in de buurt Broekstraat-Hoek-Lijnt-Eijkereind in Bergeijk.

Beschrijving

Deze royale en comfortabele vrijstaande woning biedt de perfecte mix van wonen en multifunctionele ruimtes. Gelegen op een perceel van 739 m2, beschikt de woning over een kantoor/slaapkamer/praktijkruimte op de begane grond. De ruime eetkamer met panoramisch uitzicht leidt naar een fraai aangelegde achtertuin van circa 36 meter diep met een kersen- en notenboom, en een moestuin. De open keuken is uitgerust met moderne apparatuur. Op de eerste verdieping bevinden zich drie ruime slaapkamers en een badkamer met inloopdouche en ligbad. Het huis, gebouwd in 1976 en gemoderniseerd, heeft vloerverwarming op de begane grond en is energiezuinig met 8 zonnepanelen en isolerende beglazing. De nabijheid van Eindhoven maakt het extra aantrekkelijk.

Overdracht

Vraagprijs
€ 698.000 k.k.
Prijs per m²
€ 5.540
Aangeboden sinds
24-02-2026
Status
Beschikbaar
Beschikbaar
Per direct

Oppervlakte en inhoud

Woonoppervlakte
126 m²
Perceeloppervlakte
739 m²

Bouw

Type woning
Huis
Soort woning
Tussenwoning (rijtjeshuis), Eengezinswoning
Soort bouw
Bestaande bouw
Bouwjaar
1976

Indeling

Aantal kamers
6
Aantal slaapkamers
4
Aantal badkamers
1

Buitenruimte

Dakterras
Niet aanwezig

Energie

Energielabel
C
Meld een probleem met deze woning