Contact met de makelaar

Deze woning is gevonden buiten ons eigen netwerk. Met de knop hieronder kom je direct bij de aanbieder terecht.

Nieuw

Breerijt

Bekijk kaart
5571 JW Bergeijk (Weebosserweg-Breerijt)
€ 698.000 k.k.
  • 164 m²
  • 6 kamers
  • 1995

Samenvatting

  • Deze woning wordt sinds 5 december 2025 aangeboden door Hennie Kunnen Makelaardij;
  • De tussenwoning heeft een woonoppervlakte van 164 m² en beschikt over 6 kamers, waarvan 3 slaapkamers;
  • De woning is gebouwd In 1995 en ligt in de buurt Weebosserweg-Breerijt in Bergeijk.

Beschrijving

Overdracht

Vraagprijs
€ 698.000 k.k.
Aangeboden sinds
05-12-2025
Status
Beschikbaar
Beschikbaar
In overleg

Oppervlakte en inhoud

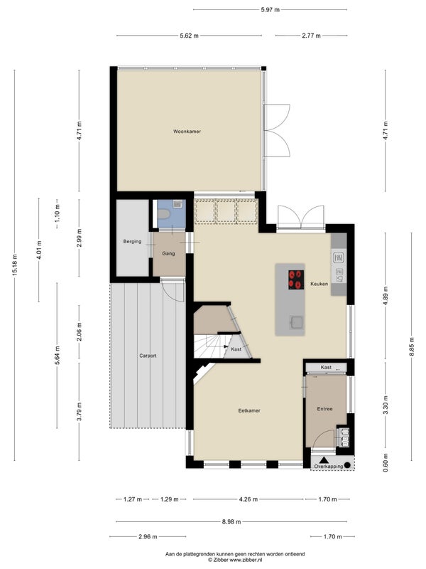
Woonoppervlakte
164 m²
Perceeloppervlakte
496 m²

Bouw

Type woning
Huis
Soort woning
Tussenwoning (rijtjeshuis), Eengezinswoning
Soort bouw
Bestaande bouw
Bouwjaar
1995

Indeling

Aantal kamers
6
Aantal slaapkamers
3
Aantal badkamers
1

Buitenruimte

Dakterras
Niet aanwezig

Energie

Energielabel
B
Meld een probleem met deze woning