Contact met de makelaar

Deze woning is gevonden buiten ons eigen netwerk. Met de knop hieronder kom je direct bij de aanbieder terecht.

Sint Victor

Bekijk kaart
5571 RM Bergeijk (Beistervelden)
€ 469.000 k.k.
  • 121 m²
  • 6 kamers
  • 1977

Samenvatting

  • Deze woning wordt sinds 22 januari 2026 aangeboden door Hennie Kunnen Makelaardij;
  • De tussenwoning heeft een woonoppervlakte van 121 m² en beschikt over 6 kamers, waarvan 4 slaapkamers;
  • De woning is gebouwd In 1977 en ligt in de buurt Beistervelden in Bergeijk.

Beschrijving

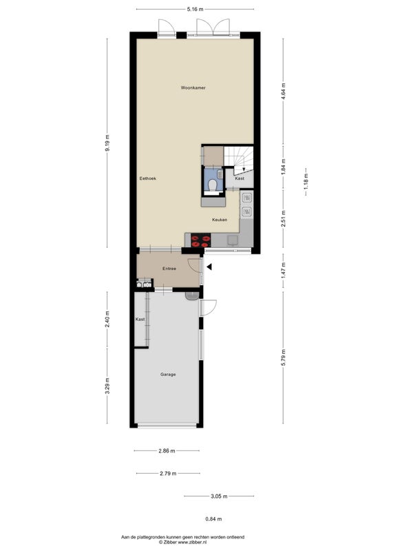
In een rustige straat vind je deze gezinswoning met vrij uitzicht aan de voor- en achterzijde. De woning, gebouwd in 1977, is in 2020 grotendeels gemoderniseerd en beschikt over vier slaapkamers. De zonnige achtertuin is op het zuiden gelegen, met 11 zonnepanelen en toegang tot een parkeerterrein. Binnen is er een open keuken met moderne apparatuur en een gezellige woonkamer met openslaande deuren naar de tuin. De eerste verdieping heeft drie slaapkamers en een vernieuwde badkamer met inloopdouche. De tweede verdieping biedt een vierde slaapkamer met dakraam. De woning heeft een eigen oprit naar de garage en is voorzien van vloerverwarming en isolatie, met energielabel A+. Het gebruiksoppervlak is 121 m² en het perceel meet 168 m².

Overdracht

Vraagprijs
€ 469.000 k.k.
Aangeboden sinds
22-01-2026
Status
Beschikbaar
Beschikbaar
Per direct

Oppervlakte en inhoud

Woonoppervlakte
121 m²
Perceeloppervlakte
168 m²

Bouw

Type woning
Huis
Soort woning
Tussenwoning (rijtjeshuis), Eengezinswoning
Soort bouw
Bestaande bouw
Bouwjaar
1977

Indeling

Aantal kamers
6
Aantal slaapkamers
4
Aantal badkamers
1

Buitenruimte

Dakterras
Niet aanwezig

Energie

Energielabel
A+
Meld een probleem met deze woning