Contact met de makelaar

Deze woning is gevonden buiten ons eigen netwerk. Met de knop hieronder kom je direct bij de aanbieder terecht.

Bredasestraat

Bekijk kaart
4611 CH Bergen op Zoom (Vestinggronden-Noord)
€ 495.000 k.k.
  • 184 m²
  • 6 kamers
  • 1915

Samenvatting

  • Deze woning wordt sinds 15 oktober 2025 aangeboden door ViaOns Makelaardij;
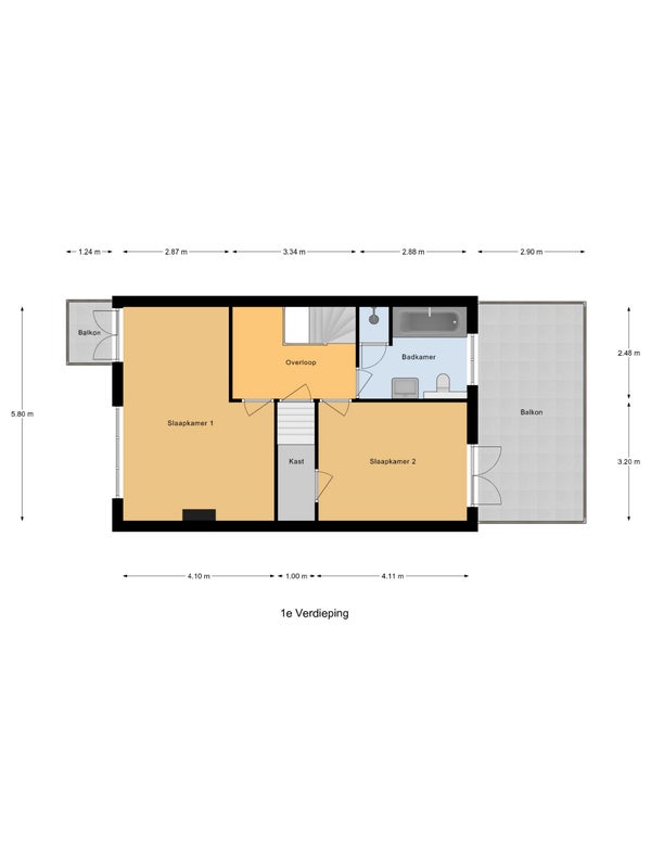
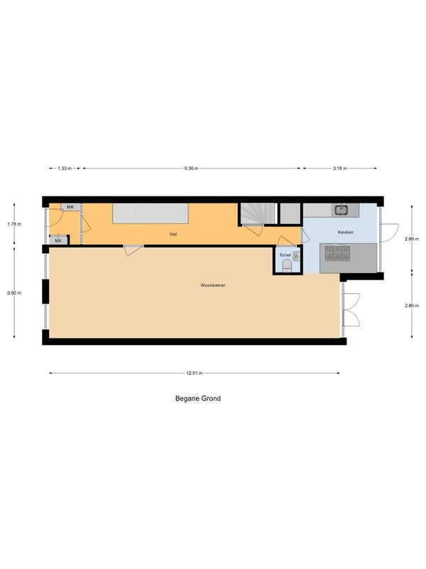
  • De tussenwoning heeft een woonoppervlakte van 184 m² en beschikt over 6 kamers, waarvan 5 slaapkamers;
  • De woning is gebouwd In 1915 en ligt in de buurt Vestinggronden-Noord in Bergen op Zoom.

Beschrijving

Meer woninginformatie bekijken?

Log in of registreer gratis.

Overdracht

Vraagprijs
€ 495.000 k.k.
Aangeboden sinds
15-10-2025
Status
Beschikbaar
Beschikbaar
In overleg

Oppervlakte en inhoud

Woonoppervlakte
184 m²
Perceeloppervlakte
170 m²

Bouw

Type woning
Huis
Soort woning
Tussenwoning (rijtjeshuis), Eengezinswoning
Soort bouw
Bestaande bouw
Bouwjaar
1915

Indeling

Aantal kamers
6
Aantal slaapkamers
5
Aantal badkamers
1

Buitenruimte

Dakterras
Niet aanwezig
Meld een probleem met deze woning