Contact met de makelaar

Deze woning is gevonden buiten ons eigen netwerk. Met de knop hieronder kom je direct bij de aanbieder terecht.

Nieuw

Boutershemstraat

Bekijk kaart
4611 KA Bergen op Zoom (Vestinggronden-Zuid)
€ 495.000 k.k.
  • 144 m²
  • 4 kamers
  • 1920

Samenvatting

  • Deze woning wordt sinds 31 december 2025 aangeboden door Baas Makelaars;
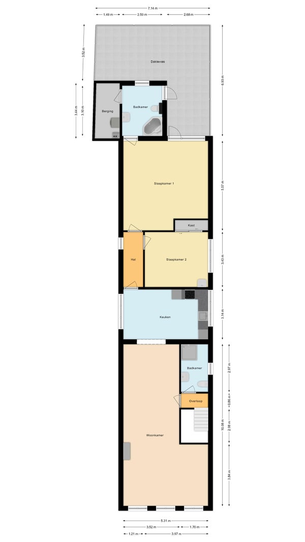
  • De tussenwoning heeft een woonoppervlakte van 144 m² en beschikt over 4 kamers, waarvan 2 slaapkamers;
  • De woning is gebouwd In 1920 en ligt in de buurt Vestinggronden-Zuid in Bergen op Zoom.

Beschrijving

Deze te koop aangeboden woonhuis, gebouwd in 1920, ligt in het centrum van Bergen op Zoom aan een drukke weg. Met een totale oppervlakte van 236 m² en een woonoppervlakte van 144 m² biedt het voldoende ruimte. Het huis heeft vier kamers, waaronder twee slaapkamers en twee badkamers met voorzieningen zoals een ligbad, douche en wastafel. De inhoud bedraagt 1155 m³ en er is een achtertuin met een zonneterras. De tuin ligt op het zuiden en is van normale kwaliteit. Voorzieningen zijn onder andere tv-kabel en natuurlijke ventilatie. Het huis is volledig geïsoleerd met dubbel en HR glas en voorzien van CV-ketel voor verwarming en warmwater. Er is betaald parkeren met vergunning mogelijk. Permanente bewoning is toegestaan.

Overdracht

Vraagprijs
€ 495.000 k.k.
Aangeboden sinds
31-12-2025
Status
Beschikbaar
Beschikbaar
In overleg

Oppervlakte en inhoud

Woonoppervlakte
144 m²
Perceeloppervlakte
236 m²

Bouw

Type woning
Huis
Soort woning
Tussenwoning (rijtjeshuis), Eengezinswoning
Soort bouw
Bestaande bouw
Bouwjaar
1920

Indeling

Aantal kamers
4
Aantal slaapkamers
2
Aantal badkamers
2

Buitenruimte

Dakterras
Niet aanwezig

Energie

Energielabel
G
Meld een probleem met deze woning