Contact met de aanbieder

Deze woning is gevonden buiten ons eigen netwerk. Via de knop hieronder ga je direct naar de website van de aanbieder.

Nieuw

Zwartewaal 4

Bekijk kaart
4617 NS Bergen op Zoom (Bergse Plaat)
€ 369.000 k.k.
  • 115 m²
  • 4 kamers
  • 1991

Samenvatting

  • Deze woning wordt sinds 1 maart 2026 aangeboden door Pierre Belde Makelaardij;
  • De tussenwoning heeft een woonoppervlakte van 115 m² en beschikt over 4 kamers, waarvan 3 slaapkamers;
  • De woning is gebouwd In 1991 en ligt in de buurt Bergse Plaat in Bergen op Zoom;
  • De woning beschikt onder andere over de volgende voorzieningen: Kabel TV, Glasvezelaansluiting, Rookkanaal, Internetaansluiting, Mechanische ventilatie, Buitenzonwering, Rolluiken, Douche, Dakraam, Toilet.

Beschrijving

Deze aan de achterzijde uitgebouwde tussenwoning is op de Bergse Plaat gelegen vlakbij de basisschool. De woning is aan de buitenzijde onderhoudsvriendelijk met kunststof kozijnen met HR++ dubbel glas. Op de begane grond heb je aan de achterzijde, door de uitbouw, een zeer royale woonkamer en een met schuifdeuren af te sluiten keuken aan de voorzijde van de woning. Op de 1e verdieping bevinden zich 2 slaapkamers (voorheen 3) waarvan 1 met dakkapel en inloopkast en de badkamer met instapdouche, hangcloset en wastafel met meubel. De 2e verdieping, die met een vaste trap bereikbaar is, beschikt over een grote slaapkamer met 2 dakvensters en een aparte ruimte op de voorzolder waar de aansluitingen zijn voor de wasmachine en de wasdroger en waar tevens de cv-ketel hangt. Achter de woning is een leuke, gezellige tuin aanwezig met achter in de tuin een royale (dubbele) berging met de uitgang naar de hierachter gelegen brandgang.

De woning is gelegen aan de Zwartewaal in de nabijheid van alle voorzieningen op de Bergse Plaat. Het winkelcentrum Het Kompas, waar je voor de basisvoorzieningen terecht kunt, bereik je in enkele minuten fietsen evenals de horecavoorzieningen aan de boulevard. Het historische centrum van Bergen op Zoom bereik je in 15 minuten fietsen. Mocht je buiten de stad moeten zijn, de autosnelweg naar Breda, Rotterdam of Antwerpen is binnen 5 minuten bereikt.

Zoek je een leuke tussenwoning, in een kindvriendelijke wijk, nabij de basisscholen en overige voorzieningen? Maak dan snel een afspraak voor een bezichtiging.

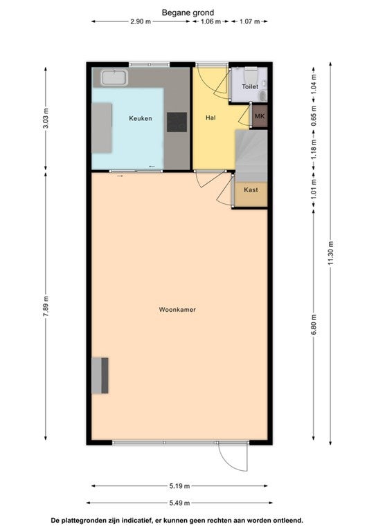
Hal
Vanuit de voortuin betreed je de woning in de hal. In de hal bevinden zich de garderobe, het toilet, de trapopgang naar de 1e verdieping en de vernieuwde meterkast. Deze beschikt over 10 elektragroepen en 3 aardlekschakelaars en een kookgroep.

Toilet
Het toilet bestaat uit een hangcloset en fontein. Het toilet is betegeld tot ongeveer halfhoog. Hierboven zijn de wanden en het plafond afgewerkt met spuitwerk.

Woonkamer
Vanuit de hal kom je in de royale woonkamer. Door de uitbouw aan de achterzijde is het een heerlijke ruimte om rondom de gashaard een zithoek te creëren. Hiernaast is er meer dan voldoende ruimte om een eethoek te plaatsen. Vanuit de woonkamer is het mogelijk om de achtertuin in te lopen via een tuindeur. Op de scheiding van de woonkamer en de (halfopen) keuken zijn schuifdeuren aangebracht die de woonkamer kunnen afsluiten van de keuken. De wanden van de woonkamer zijn afgewerkt met strak stucwerk en het plafond met spuitwerk. Op de vloer ligt een eikenhouten plankenvloer.

Keuken
De keuken staat in halfopen verbinding met de woonkamer en is aan de voorzijde van de woning gelegen. Vanuit de keuken heb je uitzicht over de Zwartewaal. Het in L-vorm opgestelde keukenblok beschikt over voldoende onderkasten en -lades, een kunststof werkblad met spoelbak en mengkraan. Ingebouwd zijn een 5-pits gaskookplaat (incl. wok brander) met hierboven de afzuigkap en een vaatwasser. Hiernaast staat een apparatenwand. In de apparatenwand zijn aanwezig een combi-oven/grill/magnetron, een combi-oven/grill en een koel/vriescombinatie. De achterwand boven het werkblad is deels betegeld. De afwerking bestaat verder uit spuitwerk op de wanden en het plafond. De vloer is betegeld.

De trapopgang in de hal komt uit op de overloop van de 1e verdieping. Op deze verdieping bevinden zich 2 slaapkamers en de badkamer. Voorheen waren er 3 slaapkamers. Deze zijn, indien gewenst, makkelijk terug te realiseren.

Slaapkamer 1 (ca. 16 m2)
Deze slaapkamer met inloopkast is aan de achterzijde gelegen en beschikt over een dakkapel wat zorgt voor veel lichtinval. In deze slaapkamer is royaal plaats voor een 2-persoonsbed. De wanden zijn afgewerkt met strak stucwerk en het plafond met spuitwerk. Op de vloer ligt laminaat.

Slaapkamer 2 (ca. 12,5 m2)
Deze lichte slaapkamer is aan de voorzijde gelegen. In deze slaapkamer kan een 2-persoonsbed staan met kledingkast. De wanden zijn afgewerkt met strak stucwerk en het plafond met spuitwerk. Op de vloer ligt laminaat.

Badkamer
De verwarmde badkamer beschikt over een hoek-/instapdouche met regendouche en handsproeier, een hangcloset en een wastafel waaronder een badkamermeubel aanwezig is. De vloer en de wanden van de badkamer zijn volledig betegeld. Het plafond is afgewerkt met spuitwerk.

2e verdieping
De vaste trapopgang op de overloop van de 1e verdieping komt uit op de voorzolder van de zolderverdieping. In het plafond van de voorzolder is een luik aanwezig wat met behulp van een vlizotrap toegang geeft tot de bovengelegen bergruimte/vliering. De zolderverdieping beschikt over een ruime slaapkamer en een ‘technische ruimte’ waar de aansluitingen aanwezig zijn voor de wasmachine en de wasdroger en waar tevens de cv-ketel hangt. Dit betreft een Remeha Avanta Ace CW4 van het bouwjaar 2024. Voor de lichtinval zorgt een dakvenster.

Zolderkamer (ca. 10 m2 boven 1,50 m gelegen)
De ruime zolderkamer beschikt aan zowel de voor- als achterzijde over een dakvenster. In deze slaapkamer kan een 2-persoonsbed staan en een bureau. De wanden en het plafond op de zolderkamer zijn afgewerkt met stucwerk en op de vloer ligt laminaat. De (geïsoleerde) dakplaten zijn gesausd.

Vanuit de woonkamer loop je via de tuindeur de nog verder aan te leggen tuin in. De op het noordwesten gesitueerde tuin is aangelegd met deels een houten vlonder en nog te beplanten borders. Achter in de tuin staat een met hout beklede (dubbele) berging met hierin de deur naar de achter de woning gelegen brandgang. De tuin is omheind door een houten schutting.

  • De woning is vlakbij de basisschool gelegen in een kindvriendelijke wijk
  • de woning is aan de achterzijde uitgebouwd
  • Ruime woonkamer en keuken
  • De woning beschikt volledig over kunststof kozijnen met HR++ glas
  • De woning beschikt over energielabel C
  • Alle voorzieningen op korte afstand
  • Vrij parkeren voor de deur

Overdracht

Vraagprijs
€ 369.000 k.k.
Prijs per m²
€ 3.209
Aangeboden sinds
01-03-2026
Status
Beschikbaar
Beschikbaar
In overleg
Onderhoudsstaat
Goed

Oppervlakte en inhoud

Woonoppervlakte
115 m²
Perceeloppervlakte
144 m²
Inhoud
366 m³

Bouw

Type woning
Huis
Soort woning
Tussenwoning (rijtjeshuis), Eengezinswoning
Soort bouw
Bestaande bouw
Bouwjaar
1991
Ligging
  • In een woonwijk
  • Nabij een school

Indeling

Aantal kamers
4
Aantal slaapkamers
3
Aantal badkamers
1
Aantal woonlagen
4
Voorzieningen
  • Kabel TV
  • Glasvezelaansluiting
  • Rookkanaal
  • Internetaansluiting
  • Mechanische ventilatie
  • Buitenzonwering
  • Rolluiken
  • Douche
  • Dakraam
  • Toilet

Buitenruimte

Balkon
Niet aanwezig
Tuin
Aanwezig (39 m², gelegen op het noordoosten)
Tuinbeschrijving
achtertuin
Achterom
Aanwezig
Dakterras
Niet aanwezig

Energie

Isolatie
Volledig geïsoleerd
Verwarming
CV-ketel, Gashaard
Warm water
CV-ketel
Cv-ketel
Remeha Avanta Ace (Gas, uit 2024, Eigendom)
Energielabel
C

Bergruimte

Schuur/Berging
Aanwezig

Parkeergelegenheid

Aanwezig
Ja
Soort parkeergelegenheid
Openbaar
Meld een probleem met deze woning