Contact met de makelaar

Deze woning is gevonden buiten ons eigen netwerk. Met de knop hieronder kom je direct bij de aanbieder terecht.

Nieuw

Noordeindseweg 132

Bekijk kaart
2651 CX Berkel en Rodenrijs (Sterrenbuurt)
€ 650.000 k.k.
  • 935 m²
  • 5 kamers
  • 1979

Samenvatting

  • Deze woning wordt sinds 27 januari 2026 aangeboden door Lagerweij & Fonk Makelaars;
  • De tussenwoning heeft een woonoppervlakte van 935 m² en beschikt over 5 kamers, waarvan 4 slaapkamers;
  • De woning is gebouwd In 1979 en ligt in de buurt Sterrenbuurt in Berkel en Rodenrijs.

Beschrijving

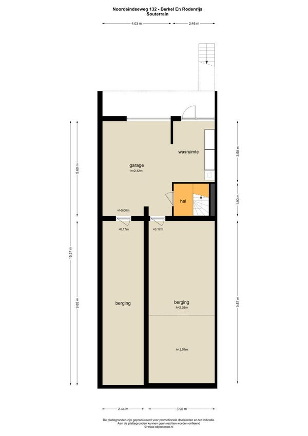
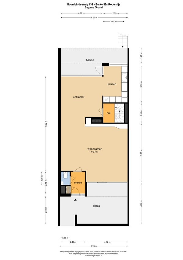
Deze mooie hoekwoning, aangeboden met een biedprijs van € 650.000,– K.K., biedt een rustige, landelijke levensstijl. Met een woonoppervlakte van ca. 178 m2 en een perceel van 202 m2, heb je alle ruimte voor jezelf en je gezin. De woning heeft een garage en 2 multifunctionele ruimtes in het souterrain van ca. 102 m2. De indeling omvat een ruime en lichte living met een inzethaard en een open keuken met inbouwapparatuur. Op de eerste verdieping bevinden zich drie ruime slaapkamers en een badkamer met ligbad en douche. De tweede verdieping biedt toegang tot een zonnig dakterras van ca. 31 m2 en een nette slaapkamer. Het souterrain is nu een garage, maar kan ook als praktijkruimte dienen. Daarnaast zijn er zonnepanelen geïnstalleerd en zijn voorzieningen zoals winkels en horeca op loopafstand.

Overdracht

Vraagprijs
€ 650.000 k.k.
Aangeboden sinds
27-01-2026
Status
Beschikbaar
Beschikbaar
Per direct

Oppervlakte en inhoud

Woonoppervlakte
935 m²
Perceeloppervlakte
202 m²

Bouw

Type woning
Huis
Soort woning
Tussenwoning (rijtjeshuis), Eengezinswoning
Soort bouw
Bestaande bouw
Bouwjaar
1979

Indeling

Aantal kamers
5
Aantal slaapkamers
4
Aantal badkamers
2

Buitenruimte

Dakterras
Niet aanwezig

Energie

Energielabel
C
Meld een probleem met deze woning