- 145 m²
- 8 kamers
- 1918
Samenvatting
- Deze woning wordt sinds 31 oktober 2025 aangeboden door Linda Jansen makelaardij;
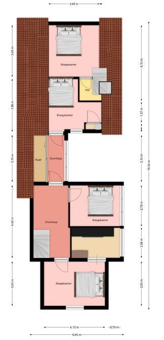
- De tussenwoning heeft een woonoppervlakte van 145 m² en beschikt over 8 kamers, waarvan 4 slaapkamers;
- De woning is gebouwd In 1918 en ligt in de buurt Broekerhaven in Bovenkarspel.
Beschrijving
Overdracht
- Vraagprijs
- € 499.500 k.k.
- Aangeboden sinds
- 31-10-2025
- Status
- Beschikbaar
- Beschikbaar
- In overleg
Oppervlakte en inhoud
- Woonoppervlakte
- 145 m²
- Perceeloppervlakte
- 216 m²
Bouw
- Type woning
- Huis
- Soort woning
- Tussenwoning (rijtjeshuis), Eengezinswoning
- Soort bouw
- Bestaande bouw
- Bouwjaar
- 1918
Indeling
- Aantal kamers
- 8
- Aantal slaapkamers
- 4
- Aantal badkamers
- 1
Buitenruimte
- Dakterras
- Niet aanwezig
Energie
- Energielabel
- B