Contact met de makelaar

Deze woning is gevonden buiten ons eigen netwerk. Met de knop hieronder kom je direct bij de aanbieder terecht.

Nieuw

Hertog Albrechtstraat

Bekijk kaart
1611 GB Bovenkarspel (Princenhof Bovenkarspel)
€ 339.500 k.k.
  • 120 m²
  • 5 kamers
  • 1975

Samenvatting

  • Deze woning wordt sinds 15 januari 2026 aangeboden door KUIN MAKELAARDIJ, actief en gedreven;
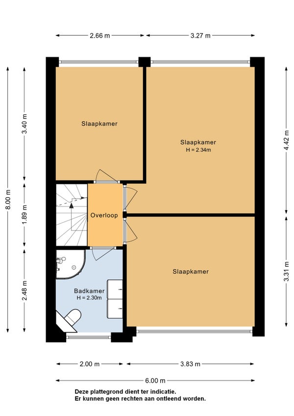
  • De tussenwoning heeft een woonoppervlakte van 120 m² en beschikt over 5 kamers, waarvan 3 slaapkamers;
  • De woning is gebouwd In 1975 en ligt in de buurt Princenhof Bovenkarspel in Bovenkarspel.

Beschrijving

Zoek je naar een ruime tussenwoning die je zal verrassen? De Hertog Albrechtstraat 3 in Bovenkarspel is een bezichtiging waard. Deze woning beschikt over vier volwaardige slaapkamers en heeft een praktische indeling met veel leefruimte, wat het perfect maakt voor uiteenlopende woonwensen. Je vindt er een vrijstaande garage met overheaddeur, ideaal voor parkeren of extra bergruimte. De diepe achtertuin op het westen biedt de mogelijkheid om tot in de avond van de zon te genieten. De woning ligt centraal, dichtbij winkels, scholen, openbaar vervoer en uitvalswegen, waardoor je rustig woont met alles binnen handbereik. Op de begane grond vind je een lichte woonkamer, een royale eetruimte en een praktische keuken met toegang tot de tuin. De eerste verdieping heeft drie slaapkamers en een badkamer, terwijl de tweede verdieping een verrassend ruime vierde slaapkamer heeft, perfect voor eigen invulling. Perceeloppervlakte van ca. 180 m2.

Overdracht

Vraagprijs
€ 339.500 k.k.
Aangeboden sinds
15-01-2026
Status
Beschikbaar
Beschikbaar
Per direct

Oppervlakte en inhoud

Woonoppervlakte
120 m²
Perceeloppervlakte
180 m²

Bouw

Type woning
Huis
Soort woning
Tussenwoning (rijtjeshuis), Eengezinswoning
Soort bouw
Bestaande bouw
Bouwjaar
1975

Indeling

Aantal kamers
5
Aantal slaapkamers
3
Aantal badkamers
1

Buitenruimte

Dakterras
Niet aanwezig

Energie

Energielabel
C
Meld een probleem met deze woning