Contact met de aanbieder

Deze woning is gevonden buiten ons eigen netwerk. Via de knop hieronder ga je direct naar de website van de aanbieder.

Duikersloot 4

Bekijk kaart
9421 VA Bovensmilde (Verspreide huizen Bovensmilde)
€ 595.000 k.k.
  • 487 m²
  • 5 kamers
  • 1935

Samenvatting

  • Deze woning wordt sinds 24 februari 2026 aangeboden door ERA Makelaardij Het Raadhuis;
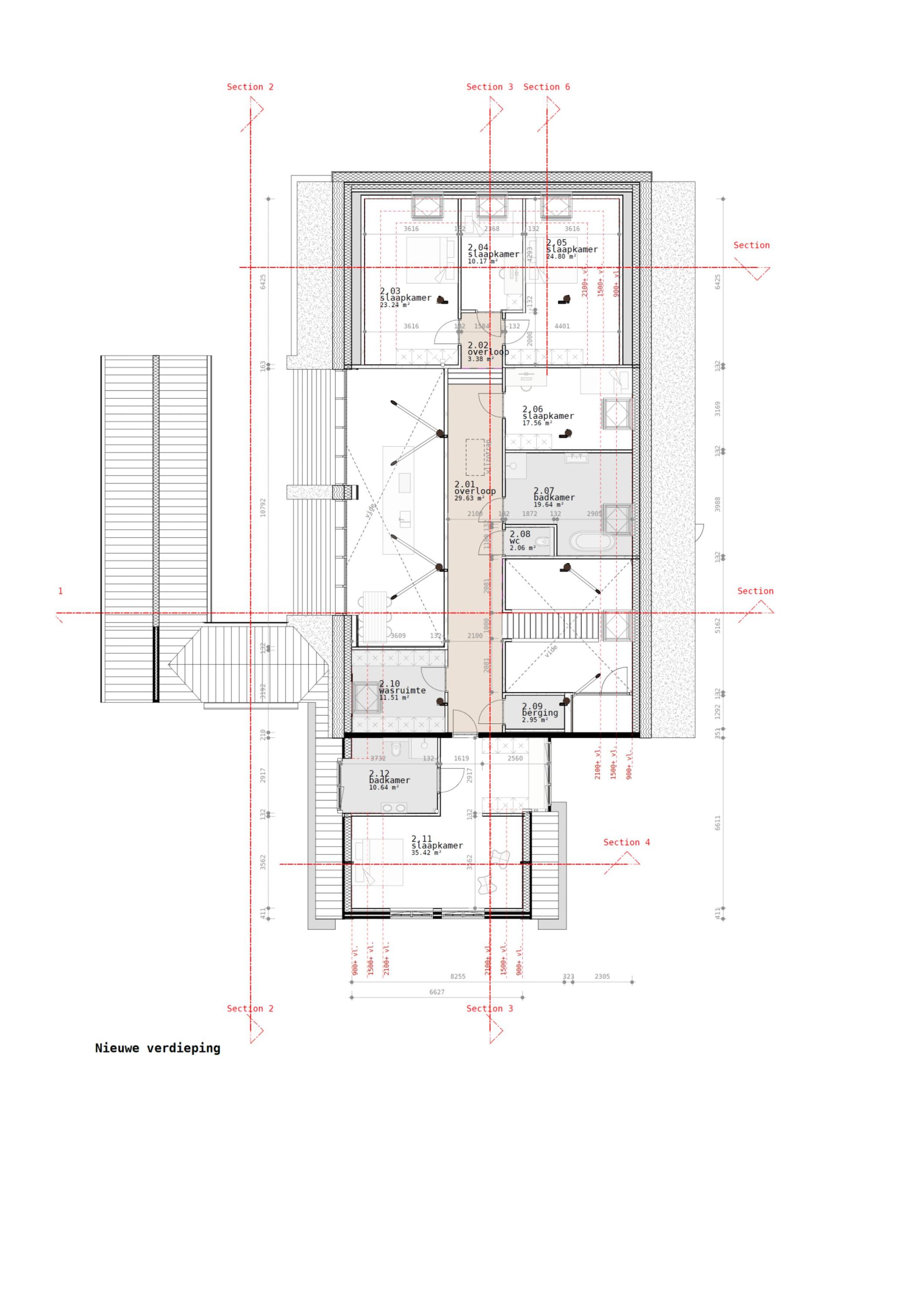
  • De tussenwoning heeft een woonoppervlakte van 487 m² en beschikt over 5 kamers, waarvan 4 slaapkamers;
  • De woning is gebouwd In 1935 en ligt in de buurt Verspreide huizen Bovensmilde in Bovensmilde.

Beschrijving

Deze unieke woonboerderij uit 1935, gelegen aan het eind van een doodlopende weg, biedt een groot perceel van 8000 m² met privacy en rust, omringd door natuur. De boerderij omvat een voorhuis en een deelruimte van meer dan 280 m². Binnen heeft de woning een oppervlak van 487 m² met een open kapconstructie, wat zorgt voor licht en ruimte. Renovatieplannen zijn beschikbaar, waarbij de jaren dertig stijl behouden blijft in combinatie met moderne elementen. De locatie grenzend aan natuurgebied Paaskamp biedt prachtige uitzichten, terwijl het dorp Bovensmilde met voorzieningen op 2 kilometer afstand ligt. Met 4 slaapkamers, 5 kamers in totaal en parkeermogelijkheden voor 10 voertuigen, is deze woonboerderij een kans voor een unieke toekomst.

Overdracht

Vraagprijs
€ 595.000 k.k.
Prijs per m²
€ 1.222
Aangeboden sinds
24-02-2026
Status
Beschikbaar
Beschikbaar
Per direct

Oppervlakte en inhoud

Woonoppervlakte
487 m²
Perceeloppervlakte
7.855 m²

Bouw

Type woning
Huis
Soort woning
Tussenwoning (rijtjeshuis), Eengezinswoning
Soort bouw
Bestaande bouw
Bouwjaar
1935

Indeling

Aantal kamers
5
Aantal slaapkamers
4

Buitenruimte

Dakterras
Niet aanwezig

Energie

Energielabel
G
Meld een probleem met deze woning